Sell

All photos (14)
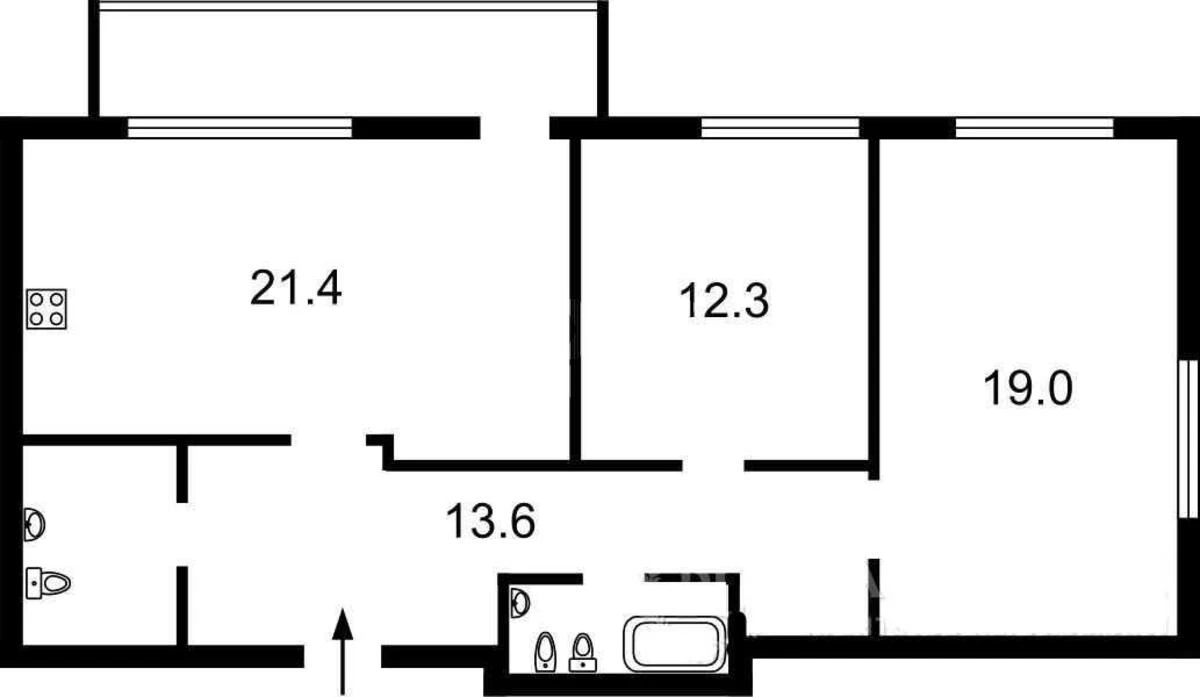
2k apartment bul. Lesi Ukrai'nky 7
- Add to favorites
-
Share link
Market type
Primary market
Street
bul. Lesi Ukrai'nky 7
Number of rooms
2
Floor
21 Floor
Number of storeys
31 storey house
Total area
81 м2
General state
Without repair
Price:
13 562 937 UAH
329 000 USD
Description of the object
Jack House residential complex, 2-bedroom apartment. Spectacular apartment with a balcony in a state after builders, logical layout, panoramic windows. The central location of the house provides maximum convenience in living. Nearby are shops, restaurants and the Klovska metro station - 5 min. The apartment has a family parking space for 2 cars for $ 60,000 in price.
Additional Information