1к квартира вул. Всеволода Змієнка 21

  • Подільський район вул. Всеволода Змієнка 21
  • Код: RF-3-293-284
  • Добавлено: 19.03.2026
  • Додати в обране
Тип ринку
Первинний ринок
Вулиця
вул. Всеволода Змієнка 21
Кількість кімнат
1
Поверх
5 Поверх
Поверховість
26 поверховий будинок
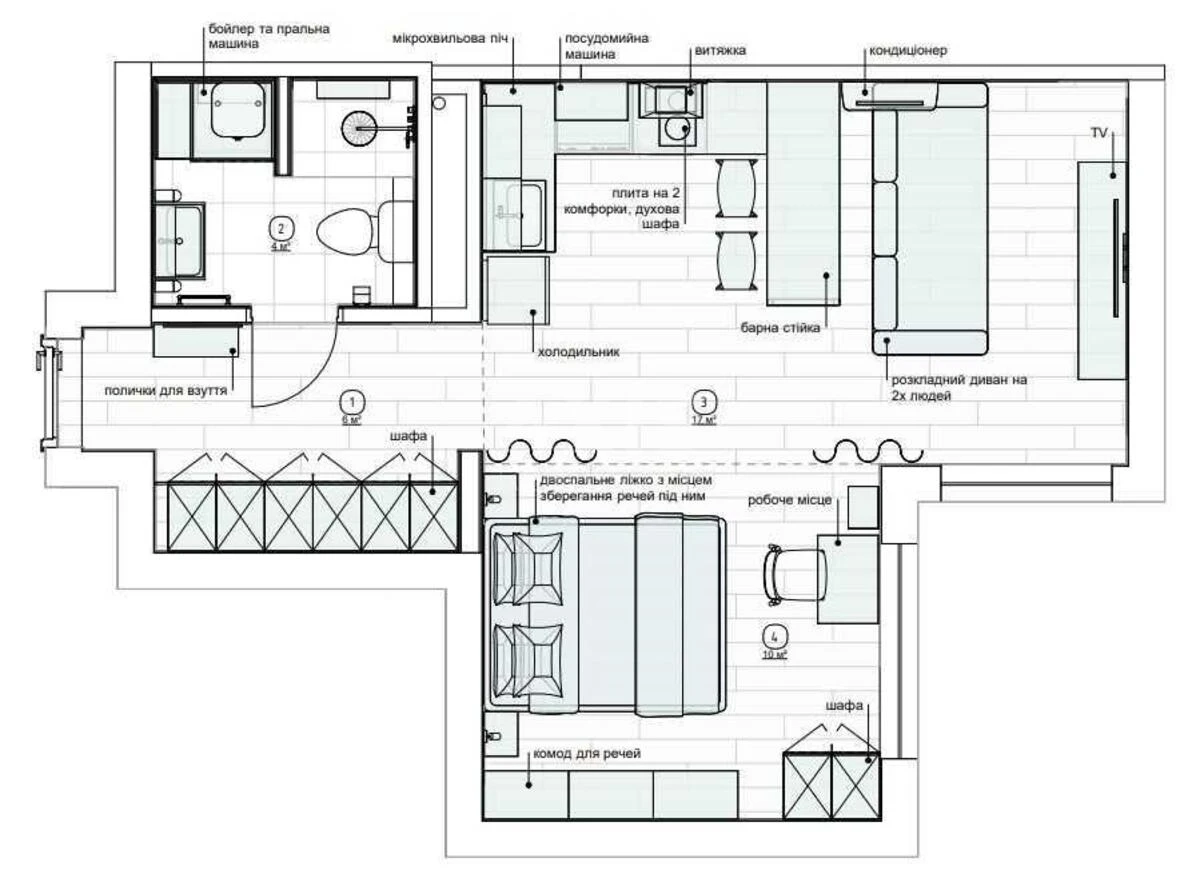
Загальна площа
37 м2
Загальний стан
З ремонтом
Ціна:
23 000 грн.
523 USD
Опис об'єкту

ЖК Варшавський Плюс, 1 кімнатна квартира. Новий ремонт. Присутня вся побутова техніка: кондиціонер, телевізор, посудомийна машина, плита, пральна машина, духовка. Загальна площа: 38 кв.м. Мебльована. Оптоволоконий інтернет. Є технічна можливість живити квартиру від Екофлоу У комплексі є пішохідні алеї, велосипедні доріжки, дитячі майданчики, спортивні майданчики та зелена територія.

Схожі пропозиції