1к квартира ул. Всеволода Змиенко 21

  • Подольский район ул. Всеволода Змиенко 21
  • Код: RF-3-293-284
  • Добавлено: 19.03.2026
  • Добавить в избранное
Тип рынка
Первичный рынок
Улица
ул. Всеволода Змиенко 21
Количество комнат
1
Этаж
5 Этаж
Этажность
26 этажный дом
Общая площадь
37 м2
Общее состояние
С ремонтом
Цена:
23 000 грн.
523 USD
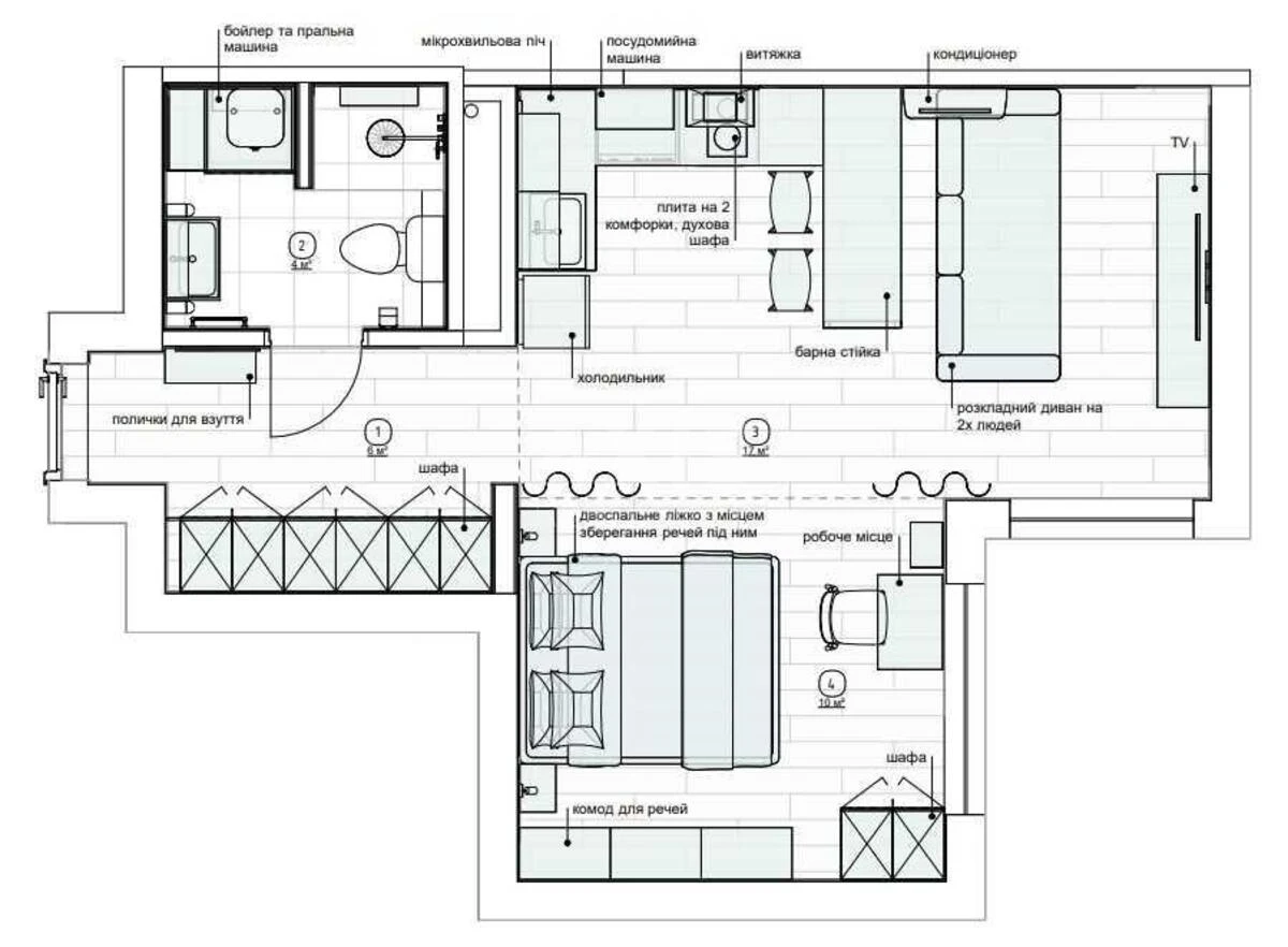
Описание объекта

ЖК «Варшавский Плюс», 1-комнатная квартира. Свежий ремонт. Имеется вся бытовая техника: кондиционер, телевизор, посудомоечная машина, плита, стиральная машина, духовка. Общая площадь: 38 кв.м. Меблирована. Оптоволоконный интернет. Есть техническая возможность подключить квартиру к Экофлоу. В комплексе есть пешеходные аллеи, велосипедные дорожки, детские площадки, спортивные площадки и зеленая территория.

Похожие предложения