1к квартира вул. Радченка Петра 27

  • Солом'янський район вул. Радченка Петра 27
  • Код: SF-3-264-041
  • Добавлено: 30.03.2026
  • Додати в обране
Тип ринку
Первинний ринок
Вулиця
вул. Радченка Петра 27
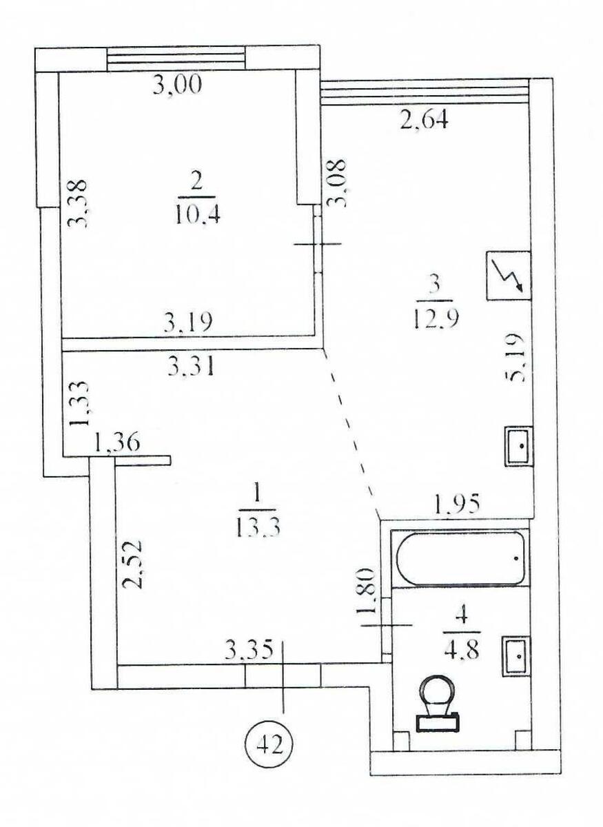
Кількість кімнат
1
Поверх
6 Поверх
Поверховість
26 поверховий будинок
Загальна площа
42 м2
Загальний стан
З ремонтом
Ціна:
3 862 319 грн.
88 000 USD
Опис об'єкту

ЖК Медовий, 1 кімнатна квартира. Студія з авторським ремонтом від відомого іноземного дизайн-бюро L’agence Avous. Планування включає суміжний санвузол, панорамні вікна та зони теплої підлоги у ванній кімнаті, коридорі та обідній зоні на кухні. Квартира повністю мебльована та оснащена сучасною технікою Gunter & Hauer: посудомийна та пральна машини, сушильний автомат, бойлер, духовка з функцією мікрохвильової печі, варильна панель, холодильник, мікрохвильова піч. Два кондиціонери забезпечують комфорт у спальні та вітальні. Передбачене робоче місце з ергономічним кріслом, три місця для телевізорів, вбудована гладильна дошка та місця для зберігання побутового інвентарю. Встановлено реле контролю напруги для захисту техніки, пасивний провітрювач з системою фільтрації повітря. Ортопедичний матрац Sleep & Fly Organic Delta з подвійним рівнем пружинних блоків IQ Double забезпечує комфортний сон. Сучасний будинок із власною котельнею, автономним електрогенератором та підключеним резервним живленням, яке підтримує роботу ліфтів, освітлення сходових клітинок, котельні та насосів гарячого й холодного водопостачання при відключенні електрики. Встановлені вантажний та пасажирський ліфти, пожежна сигналізація, відеоспостереження та консьєрж. Комплекс обладнаний підземним та гостьовим паркінгом, охороною території, зонами відпочинку та сучасною інфраструктурою для комфортного життя. Квартира готова до заселення – всі системи та обладнання функціонують, забезпечуючи максимальний комфорт і безпеку.

Схожі пропозиції