1k apartment vul. Radchenka Petra 27

  • Solomianskyi District vul. Radchenka Petra 27
  • Code: SF-3-264-041
  • Added by: 30.03.2026
  • Add to favorites
Market type
Primary market
Street
vul. Radchenka Petra 27
Number of rooms
1
Floor
6 Floor
Number of storeys
26 storey house
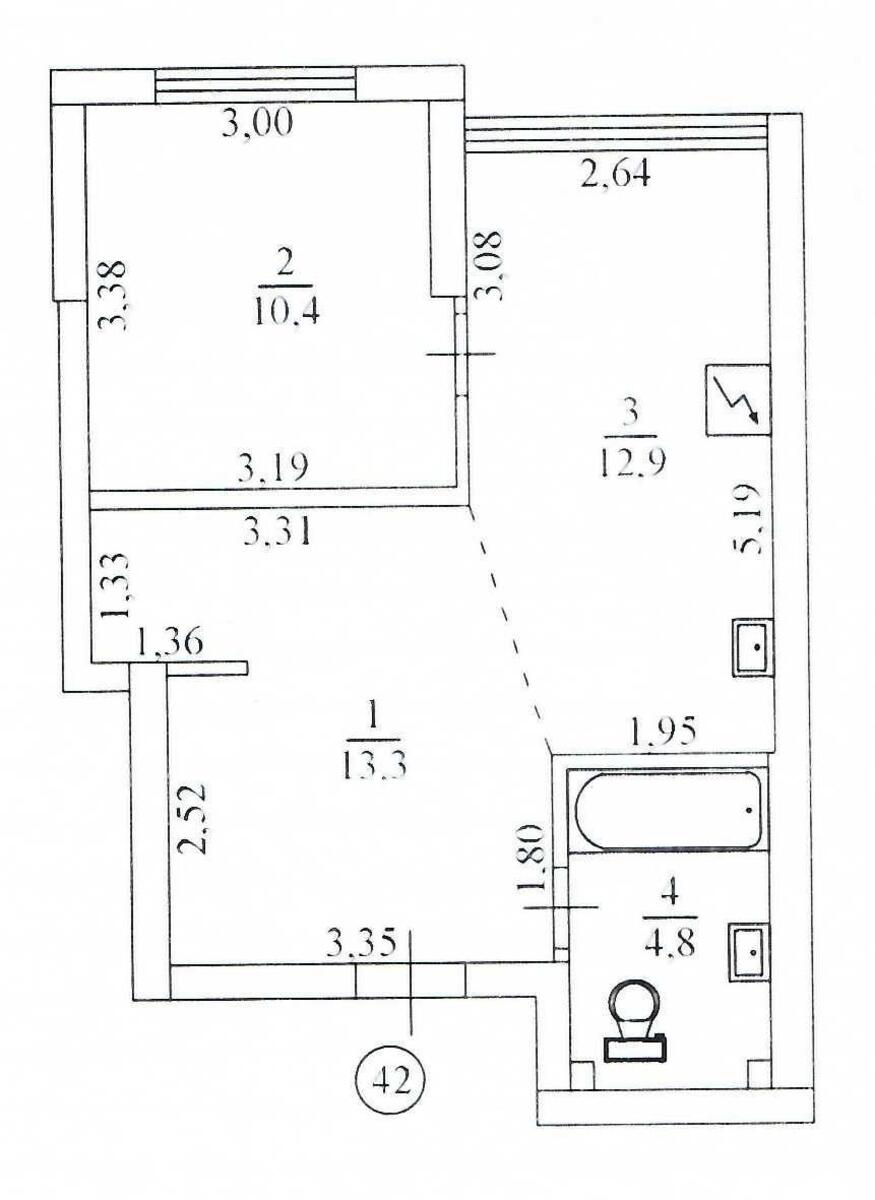
Total area
42 м2
General state
With repair
Price:
3 862 319 UAH
88 000 USD
Description of the object

Medovy residential complex, 1-bedroom apartment. Studio with designer renovation by the renowned foreign design bureau L'agence Avous. The layout includes an adjoining bathroom, panoramic windows, and heated floors in the bathroom, hallway, and dining area in the kitchen. The apartment is fully furnished and equipped with modern Gunter & Hauer appliances: dishwasher and washing machine, dryer, boiler, oven with microwave function, hob, refrigerator, microwave oven. Two air conditioners provide comfort in the bedroom and living room. There is a workspace with an ergonomic chair, three TVs, a built-in ironing board, and storage space for household items. A voltage control relay is installed to protect the equipment, as well as a passive ventilator with an air filtration system. The Sleep & Fly Organic Delta orthopedic mattress with a double level of IQ Double spring blocks ensures a comfortable night's sleep. This modern building has its own boiler room, an autonomous electric generator, and a connected backup power supply that keeps the elevators, stairwell lighting, boiler room, and hot and cold water pumps running during power outages. Freight and passenger elevators, fire alarm, video surveillance, and concierge are installed. The complex is equipped with underground and guest parking, security, recreation areas, and modern infrastructure for comfortable living. The apartment is ready to move in—all systems and equipment are functioning, ensuring maximum comfort and safety.

Similar offers