Продаж

Усі фото (4)
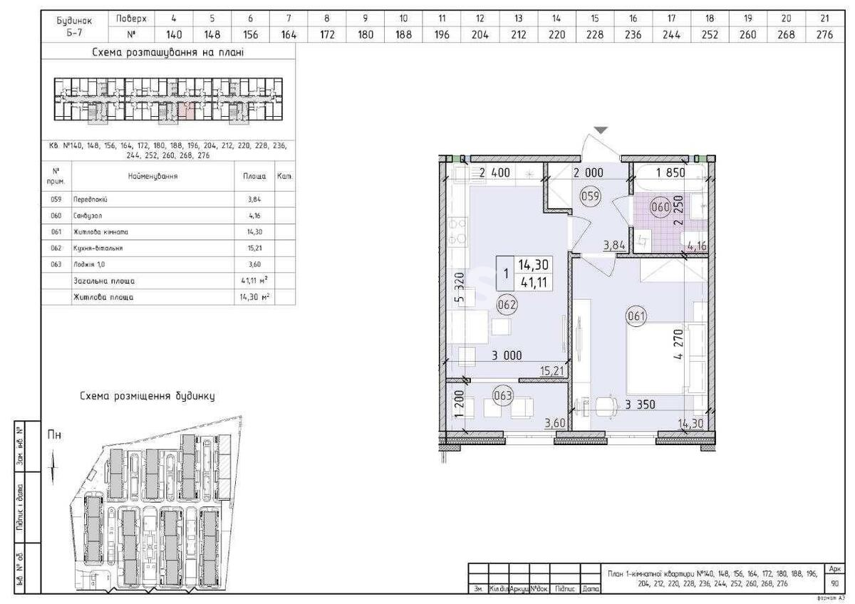
1к квартира вул. Михайла Максимовича 24
- Додати в обране
-
Подiлитись посиланням
Тип ринку
Первинний ринок
Вулиця
вул. Михайла Максимовича 24
Кількість кімнат
1
Поверх
21 Поверх
Поверховість
21 поверховий будинок
Загальна площа
41 м2
Загальний стан
Без ремонту
Ціна:
2 893 601 грн.
69 500 USD
Опис об'єкту
ЖК Нова Англія, 1 кімнатна квартира. Квартира продається без ремонту, що дає вам можливість самостійно створити інтер'єр своєї мрії. Інфраструктура: поруч знаходяться школи (Європейський колегіум, 260, 220), садочки('Маленька Європа', 'Антошка', 'Везунчик', заклади дошкільної освіти 150, 196, 667 і тд), поштове відділення 'Нова пошта' 249, магазини та ресторани для комфортного життя.
Додаткова інформація