Продажа

Все фото (4)
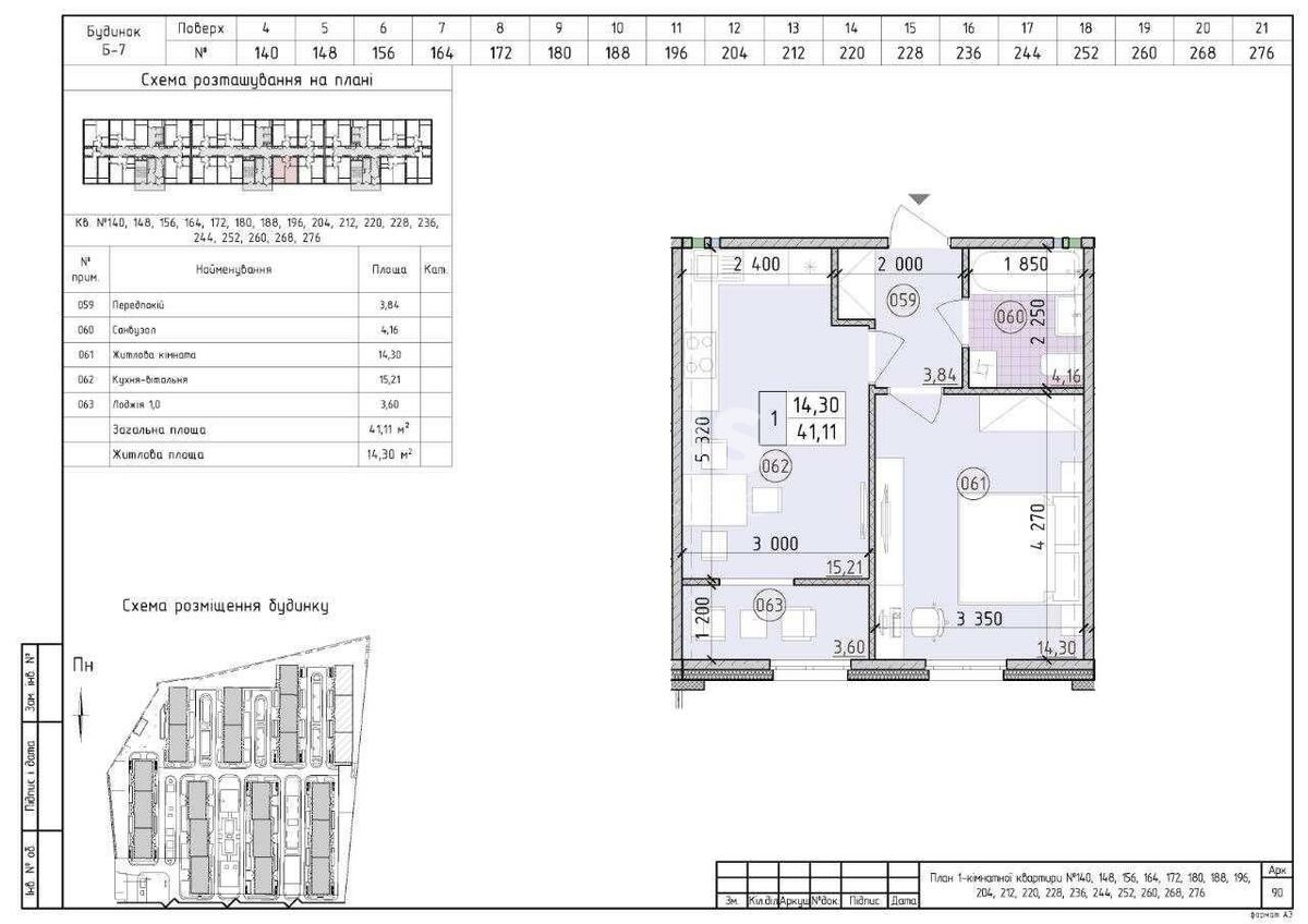
1к квартира ул. Михаила Максимовича 24
- Добавить в избранное
-
Поделиться ссылкой
Тип рынка
Первичный рынок
Улица
ул. Михаила Максимовича 24
Количество комнат
1
Этаж
21 Этаж
Этажность
21 этажный дом
Общая площадь
41 м2
Общее состояние
Без ремонта
Цена:
2 893 601 грн.
69 500 USD
Описание объекта
ЖК Новая Англия, 1 комнатная квартира. Квартира продается без ремонта, что дает вам возможность самостоятельно создать интерьер своей мечты. Инфраструктура: рядом находятся школы (Европейский коллегиум, 260, 220), садики('Маленькая Европа', 'Антошка', 'Везунчик', учреждения дошкольного образования 150, 196, 667 и тд), почтовое отделение 'Новая почта' 249, магазины и рестораны для комфортной жизни.
Дополнительная информация