1к квартира вул. Деміївська 39

  • Голосіївський район вул. Деміївська 39
  • Код: SF-3-243-716
  • Добавлено: 21.11.2025
  • Додати в обране
Тип ринку
Вторинний ринок
Вулиця
вул. Деміївська 39
Кількість кімнат
1
Поверх
5 Поверх
Поверховість
9 поверховий будинок
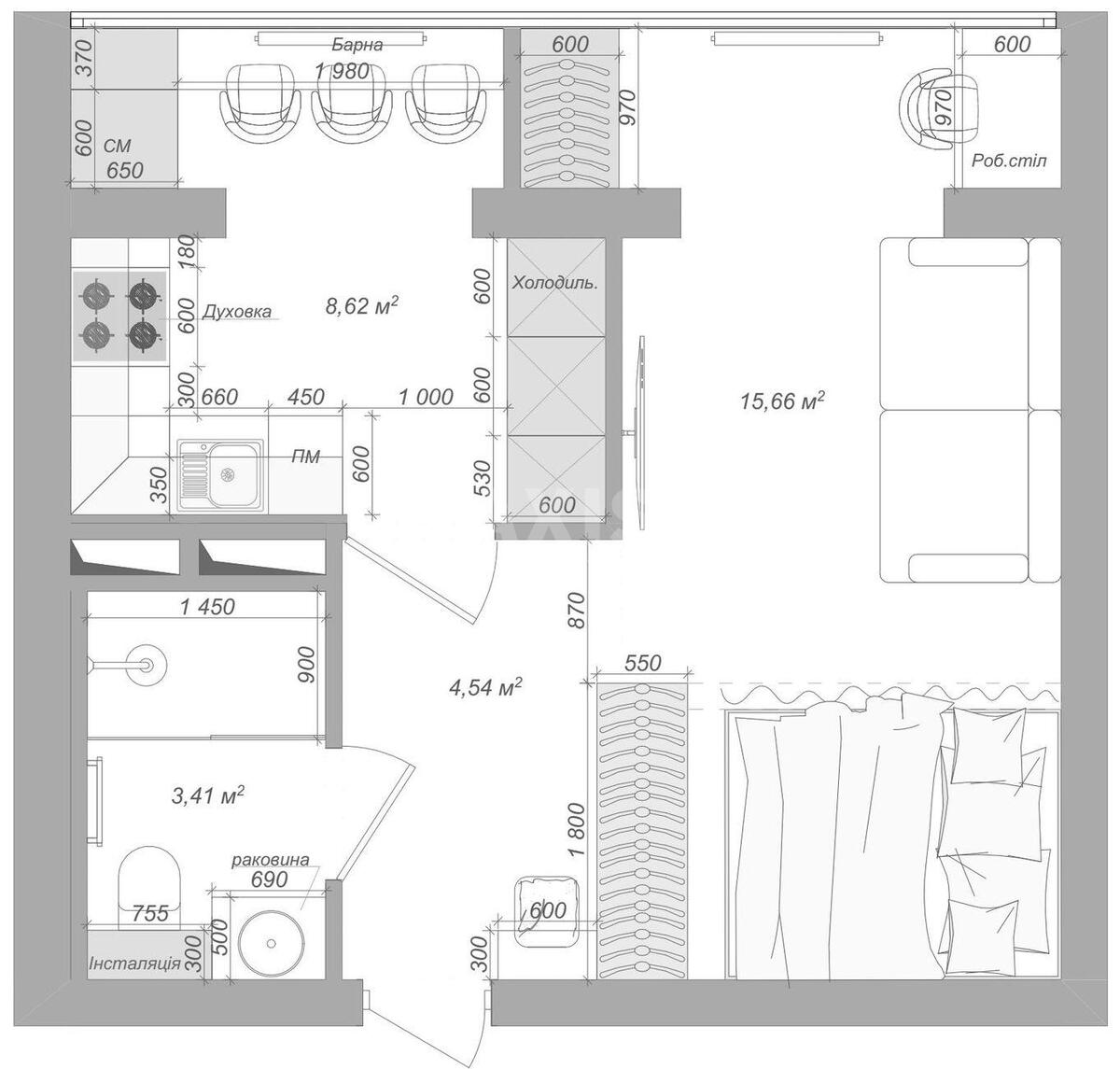
Загальна площа
32 м2
Загальний стан
З ремонтом
Ціна:
3 603 365 грн.
85 500 USD
  • AXIS Real Estate
  • AXIS Real Estate
  • AXIS Real Estate
Опис об'єкту

1 кімнатна квартира. Світла, простора, виконана у сучасному стилі за дизайн-проєктом. Ремонт новий, після завершення ніхто не проживав. У квартирі встановлено нову побутову техніку з гарантією: вбудований холодильник, пральна машина, посудомийна машина, духова шафа, варильна панель на газу, мікрохвильова піч, витяжка, телевізор. Є бойлер на 80 літрів, система очищення води, кондиціонер, швидкісний інтернет і Wi-Fi. Квартира має теплу підлогу в кухні та санвузлі, двері прихованого монтажу, меблі індивідуального виготовлення. Додатково встановлено ДБЖ, якого вистачає на 6–8 годин для освітлення, розеток, телевізора, витяжок і холодильника. У санвузлі встановлено душову кабіну. Планування продумане: окрема кухня, окремо відгороджена зона спальні (закривається шторою), сумісний санвузол. Є балкон та гардероб. Нові комунікації, новий щит електрики з німецькими автоматами, підключення квартири до ДБЖ. У квартирі дуже тепло, оскільки встановлено додатковий радіатор. Будинок новий, із сучасними комунікаціями та якісним будівництвом. У під’їзді охайно, працює швидкісний інтернет, є ліфт. Передбачені паркувальні місця для мешканців та гостьовий паркінг. Територія облаштована, поруч магазини, кафе, ресторани, спортклуб. До метро Голосіївська лише три хвилини пішки, до метро Деміївська п’ять хвилин. Зручна транспортна розв’язка: десять хвилин на авто до метро Печерська.

Додаткова інформація

Схожі пропозиції