1к квартира ул. Демеевская 39

  • Голосеевский район ул. Демеевская 39
  • Код: SF-3-243-716
  • Добавлено: 21.11.2025
  • Добавить в избранное
Тип рынка
Вторичный рынок
Улица
ул. Демеевская 39
Количество комнат
1
Этаж
5 Этаж
Этажность
9 этажный дом
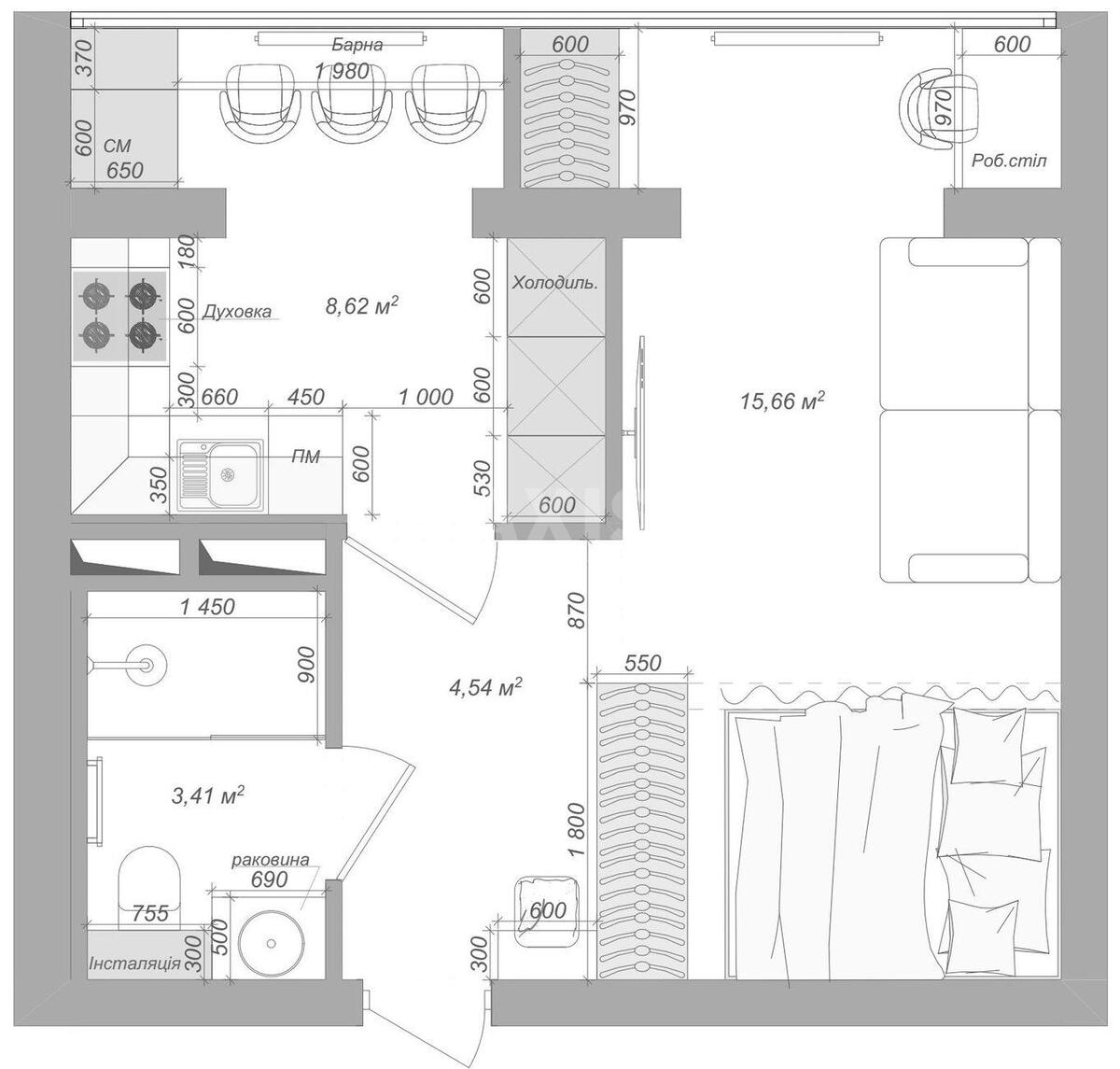
Общая площадь
32 м2
Общее состояние
С ремонтом
Цена:
3 603 365 грн.
85 500 USD
  • AXIS Real Estate
  • AXIS Real Estate
  • AXIS Real Estate
Описание объекта

1 комнатная квартира. Светлая, просторная, выполненная в современном стиле по дизайн-проекту. Ремонт новый, после завершения никто не проживал. В квартире установлена новая бытовая техника с гарантией: встроенный холодильник, стиральная машина, посудомоечная машина, духовой шкаф, варочная панель на газу, микроволновая печь, вытяжка, телевизор. Есть бойлер на 80 литров, система очистки воды, кондиционер, скоростной интернет и Wi-Fi. Квартира имеет теплый пол в кухне и санузле, двери скрытого монтажа, мебель индивидуального изготовления. Дополнительно установлен ИБП, которого хватает на 6-8 часов для освещения, розеток, телевизора, вытяжек и холодильника. В санузле установлена душевая кабина. Планировка продуманная: отдельная кухня, отдельно отгороженная зона спальни (закрывается шторой), совмещенный санузел. Есть балкон и гардероб. Новые коммуникации, новый щит электрики с немецкими автоматами, подключение квартиры к ИБП. В квартире очень тепло, так как установлен дополнительный радиатор. Дом новый, с современными коммуникациями и качественным строительством. В подъезде опрятно, работает скоростной интернет, есть лифт. Предусмотрены парковочные места для жильцов и гостевой паркинг. Территория обустроена, рядом магазины, кафе, рестораны, спортклуб. До метро Голосеевская всего три минуты пешком, до метро Демеевская пять минут. Удобная транспортная развязка: десять минут на авто до метро Печерская.

Дополнительная информация

Похожие предложения