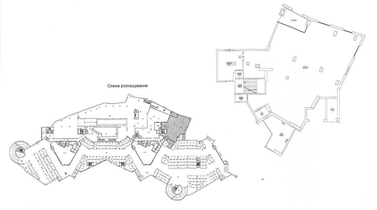
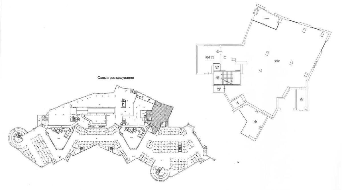
Service object pr-t Berestejskij 11, 362m2

  • Shevchenkivskyi District pr-t Berestejskij 11
  • Code: RC-217-562
  • Added by: 06.11.2025
  • Add to favorites
Market type
Secondary market
Street
pr-t Berestejskij 11
Purpose
Service Object
Floor
2 Floor
Number of storeys
36 storey house
Total area
362 м2
General state
Without repair
Price:
206 071 UAH
4 900 USD
  • AXIS Real Estate
  • AXIS Real Estate
  • AXIS Real Estate
Description of the object

Manhattan City residential complex, free premises. Condition - without repair (shell & core). The room has a front entrance, large panoramic windows and the possibility of free planning. Ideal for a fitness club, medical center, open-space office, showroom, shop, restaurant or beauty salon. Ventilation ducts, possibility of air conditioning installation. Round-the-clock access, security, video surveillance.

Additional Information