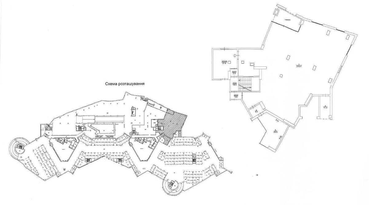
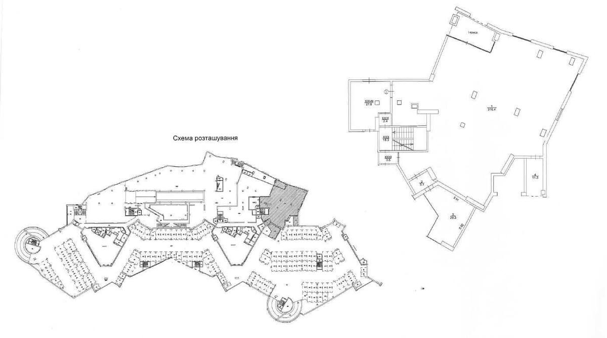
Объект сервиса пр-т Берестейский 11, 362м2

  • Шевченковский район пр-т Берестейский 11
  • Код: RC-217-562
  • Добавлено: 06.11.2025
  • Добавить в избранное
Тип рынка
Вторичный рынок
Улица
пр-т Берестейский 11
Призначення
Сервисный объект
Этаж
2 Этаж
Этажность
36 этажный дом
Общая площадь
362 м2
Общее состояние
Без ремонта
Цена:
206 071 грн.
4 900 USD
  • AXIS Real Estate
  • AXIS Real Estate
  • AXIS Real Estate
Описание объекта

ЖК Manhattan City, помещение свободного назначения. Состояние - без ремонта (shell & core). Помещение имеет фасадный вход, большие панорамные окна и возможность свободной планировки. Идеально подходит под фитнес-клуб, медицинский центр, офис open-space, шоурум, магазин, ресторан или салон красоты. Вентиляционные каналы, возможность установки кондиционирования. Круглосуточный доступ, охрана, видеонаблюдение.

Дополнительная информация