Rent

All photos (16)
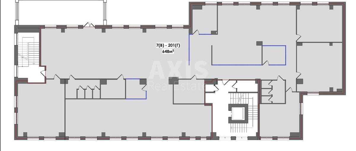
Office vul. Teligy Oleny 6, 773m2
- Add to favorites
-
Share link
Market type
Secondary market
Street
vul. Teligy Oleny 6
Purpose
Office Premise
Floor
2 Floor
Number of storeys
4 storey house
Total area
773 м2
General state
With repair
Price:
617 395 UAH
14 800 USD
Description of the object
Office space. Located on the second floor, the office has a well-thought-out layout: two large open space areas, six offices, a terrace for informal meetings, a kitchen, a dressing room, a storage room, and modern bathrooms. Panoramic windows fill the space with natural light, and noise-insulating partitions create a sense of privacy and silence even in a dynamic work environment.
Additional Information