Аренда

Все фото (16)
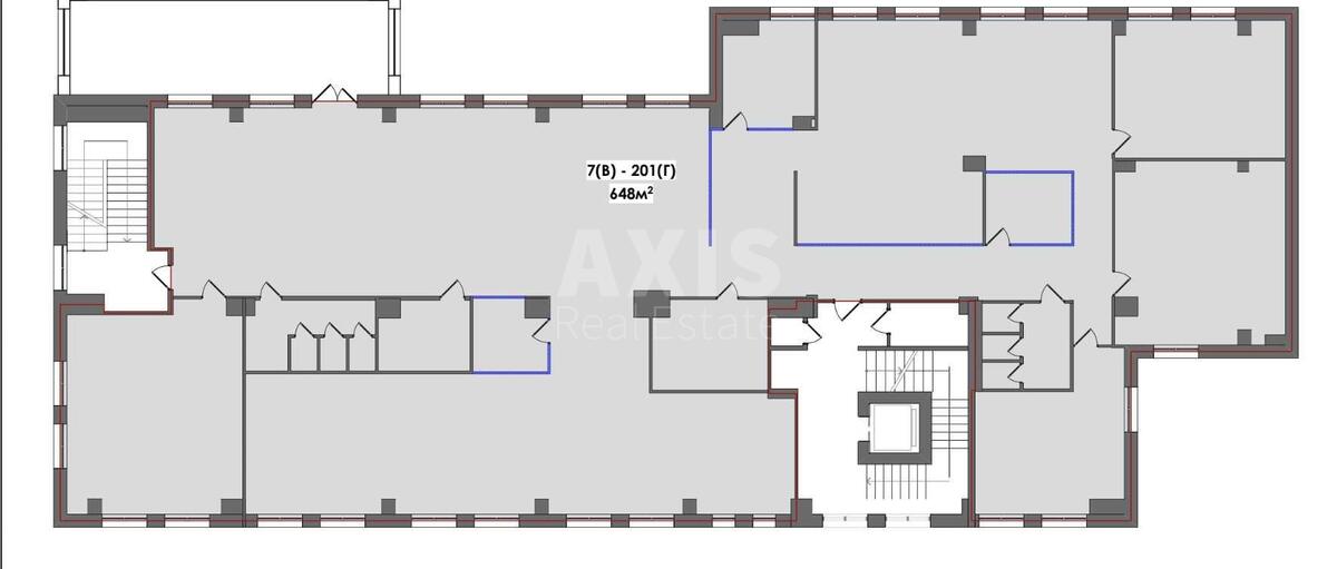
Офис ул. Телиги Елены 6, 773м2
- Добавить в избранное
-
Поделиться ссылкой
Тип рынка
Вторичный рынок
Улица
ул. Телиги Елены 6
Призначення
Офисное помещение
Этаж
2 Этаж
Этажность
4 этажный дом
Общая площадь
773 м2
Общее состояние
С ремонтом
Цена:
617 395 грн.
14 800 USD
Описание объекта
Офисное помещение. Расположенный на втором этаже, офис имеет продуманную планировку: две большие зоны open space, шесть кабинетов, террасу для неформальных встреч, кухню, гардеробную, кладовую и современные санузлы. Панорамные окна наполняют пространство естественным светом, а шумоизоляционные перегородки создают ощущение приватности и тишины даже в динамичном ритме работы.
Дополнительная информация