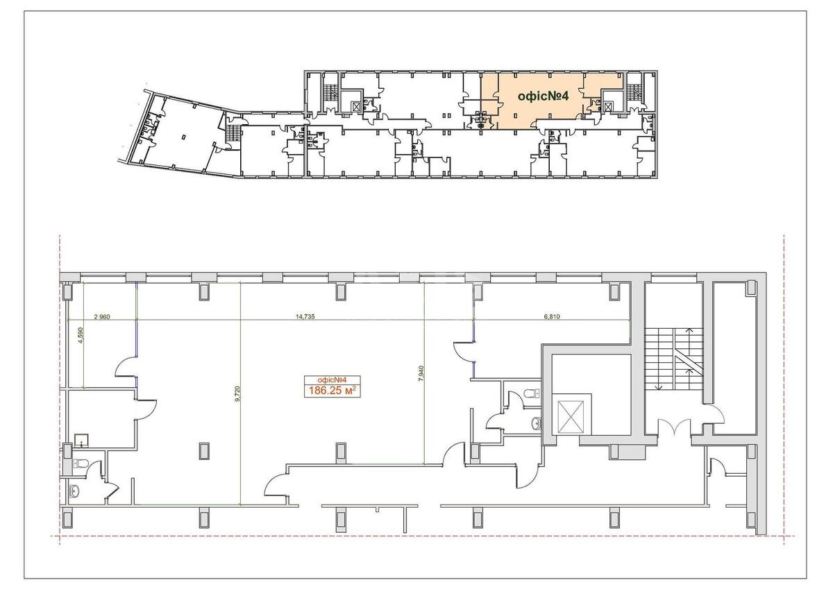
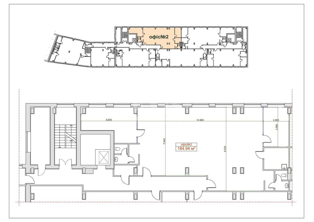
Office vul. Glybochyc'ka 17, 371m2

  • Shevchenkivskyi District vul. Glybochyc'ka 17
  • Code: RC-218-905
  • Added by: 25.02.2026
  • Add to favorites
Market type
Secondary market
Street
vul. Glybochyc'ka 17
Purpose
Office Premise
Floor
4 Floor
Number of storeys
7 storey house
Total area
371 м2
General state
With repair
Price:
111 300 UAH
2 569 USD
Description of the object

Office space. 5 floors. The nearest metro station is Vokzalnaya. With repair. All communications. The room is completely ready for use as a sports club. Possible conversion to an office center or medical clinic. There is currently 1 existing tenant.

Similar offers