Офис ул. Глубочицкая 17, 371м2

  • Шевченковский район ул. Глубочицкая 17
  • Код: RC-218-905
  • Добавлено: 25.02.2026
  • Добавить в избранное
Тип рынка
Вторичный рынок
Улица
ул. Глубочицкая 17
Призначення
Офисное помещение
Этаж
4 Этаж
Этажность
7 этажный дом
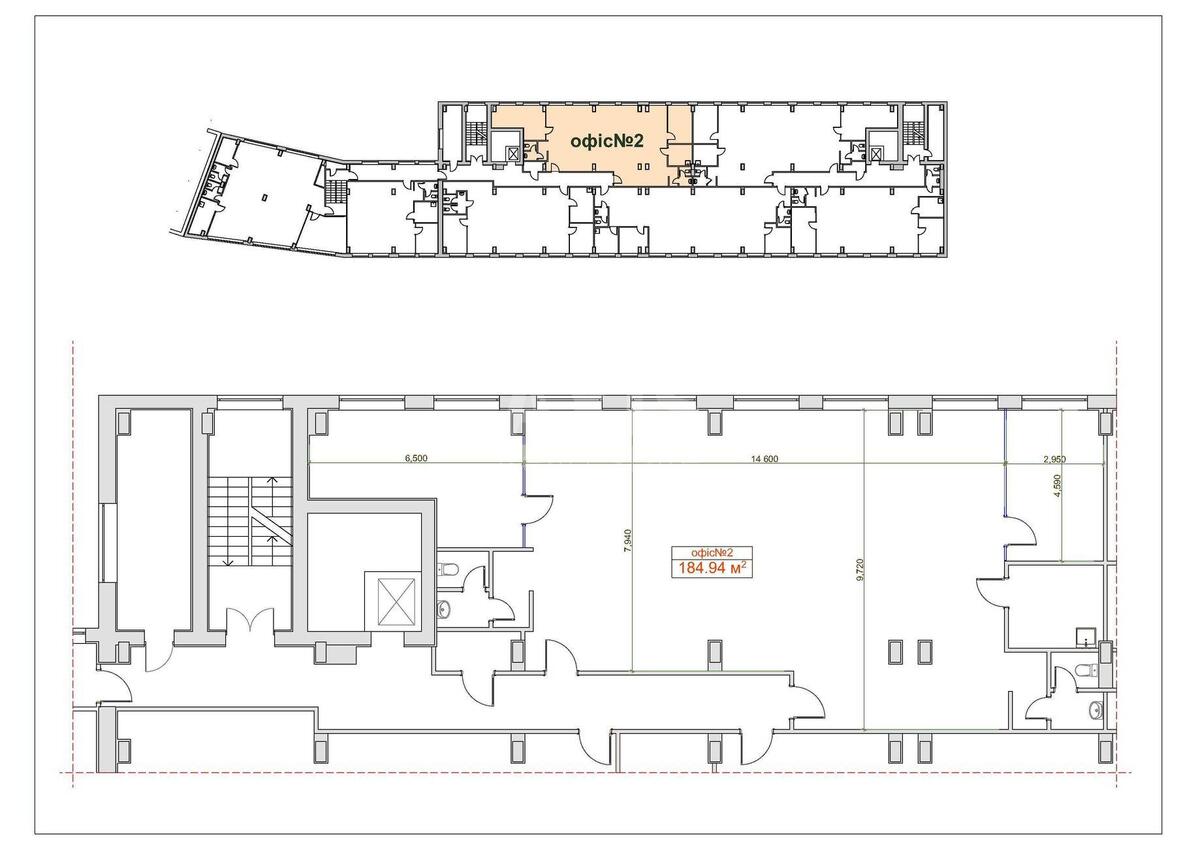
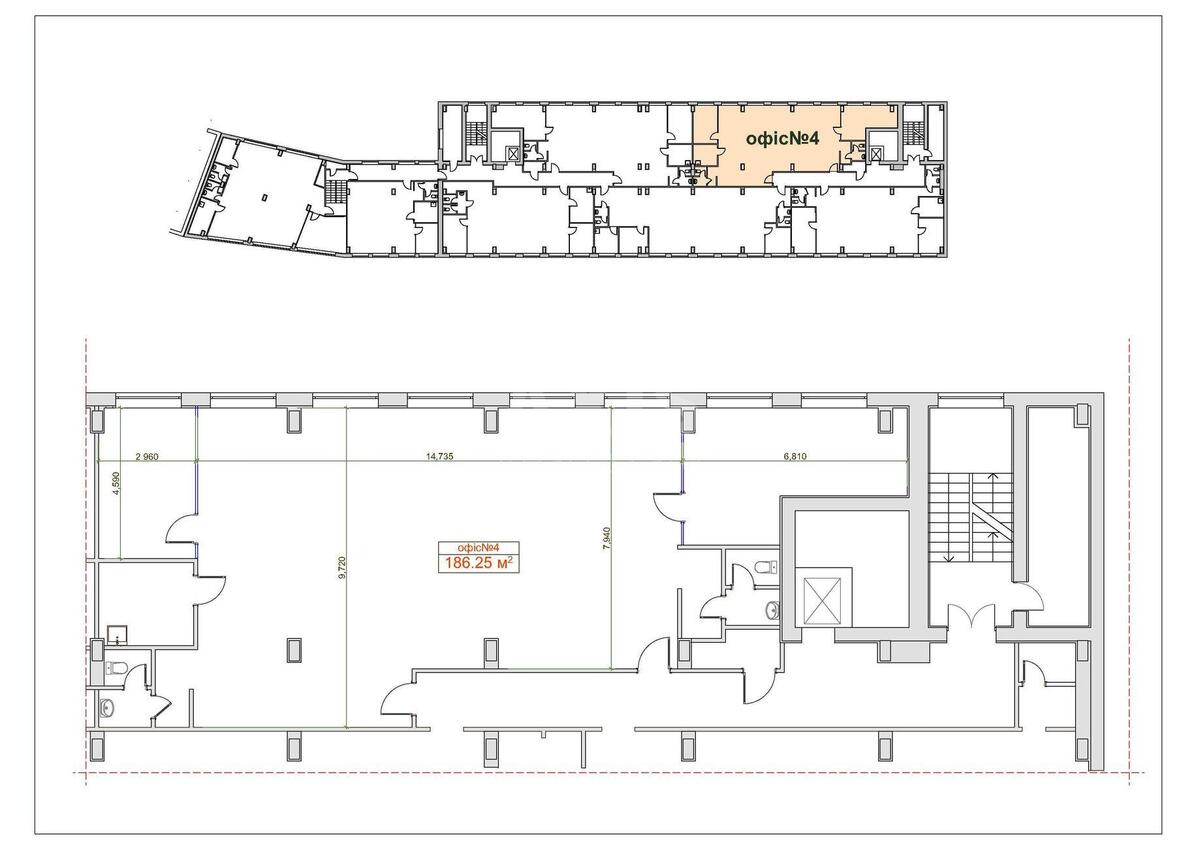
Общая площадь
371 м2
Общее состояние
С ремонтом
Цена:
111 300 грн.
2 569 USD
Описание объекта

Офисное помещение. 5 этажей. Ближайшая станция метро - Вокзальная. С ремонтом. Все коммуникации. Помещение полностью готово для использования под спортивный клуб. Возможно перепрофилирование под офисный центр или медицинскую клинику. На данный момент есть 1 действующий арендатор.

Похожие предложения