Office vul. Glybochyc'ka 17, 172m2

  • Shevchenkivskyi District vul. Glybochyc'ka 17
  • Code: RC-219-771
  • Added by: 30.12.2025
  • Add to favorites
Market type
Secondary market
Street
vul. Glybochyc'ka 17
Purpose
Office Premise
Floor
4 Floor
Number of storeys
6 storey house
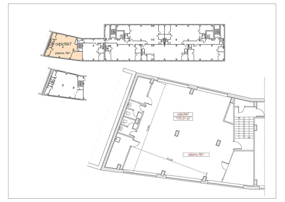
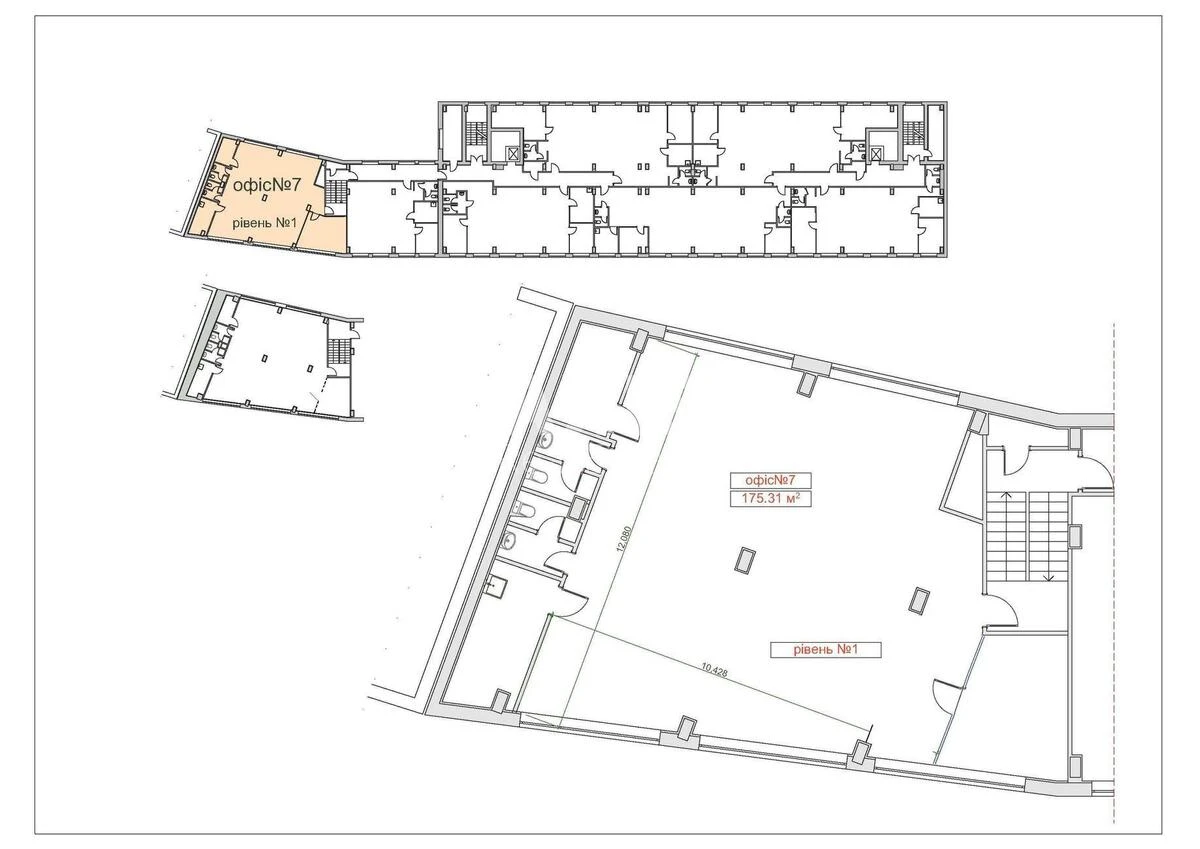
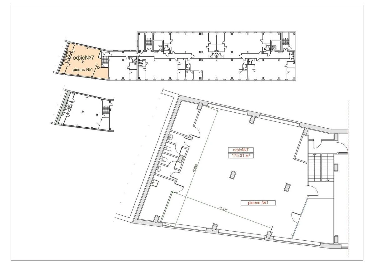
Total area
172 м2
General state
With repair
Price:
52 000 UAH
1 231 USD
Description of the object

Office space. Fourth floor, elevator. Area: - 186 m2 +185 m2 (open space, two offices, kitchen, bathroom), possibly together 370 m2; 175 m2 (open space, office, kitchen, bathroom). All communications, security, transport stop, Lukyanivska metro station - 10 minutes. Round-the-clock1 access.

Similar offers