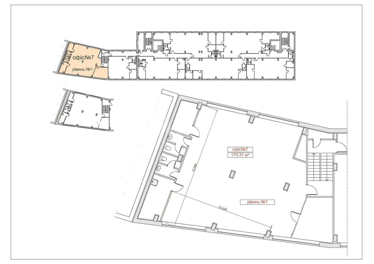
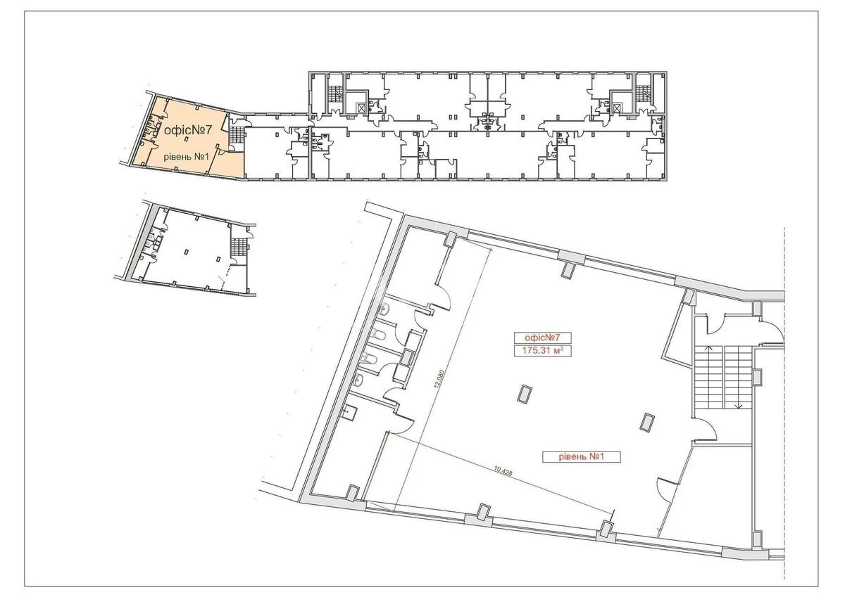
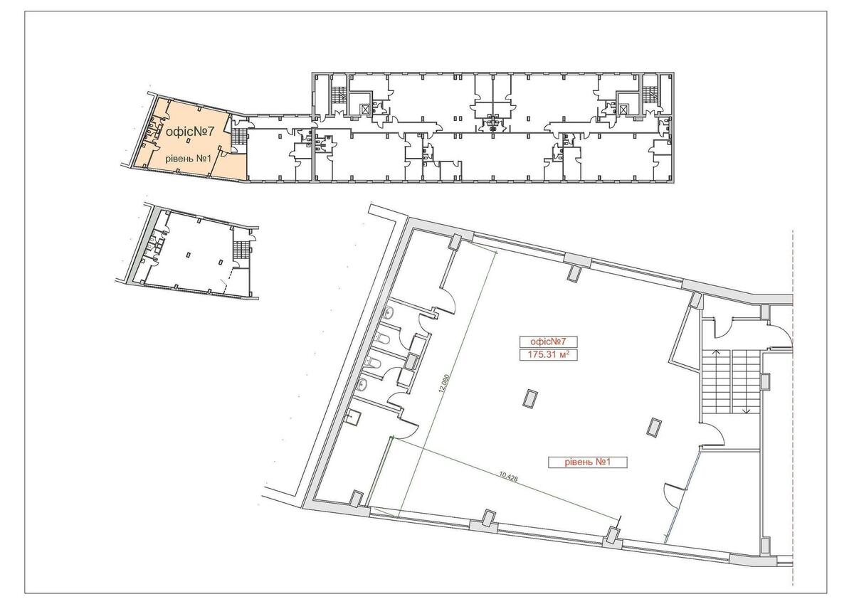
Офис ул. Глубочицкая 17, 172м2

  • Шевченковский район ул. Глубочицкая 17
  • Код: RC-219-771
  • Добавлено: 30.12.2025
  • Добавить в избранное
Тип рынка
Вторичный рынок
Улица
ул. Глубочицкая 17
Призначення
Офисное помещение
Этаж
4 Этаж
Этажность
6 этажный дом
Общая площадь
172 м2
Общее состояние
С ремонтом
Цена:
52 000 грн.
1 231 USD
Описание объекта

Офисное помещение. Четвертый этаж, лифт, лифт. Площадь: - 186 м2 +185 м2 (опенспейс, два кабинета, кухня, санузел), возможно вместе 370 м2; 175 м2 (опенспейс, кабинет, кухня санузел). Все коммуникации, охрана, остановка транспорта, метро 'Лукьяновская' - 10 минут. Круглосуточный1 доступ.

Похожие предложения