Rent
 
              
                 
                All photos (16)
              
              
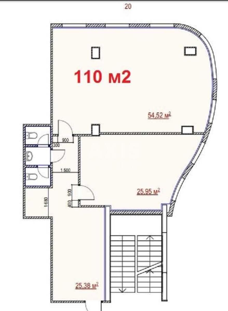
          Office uzviz Voznesens'kyj 23, 110m2
- Add to favorites
- 
              Share link
Market type
                Secondary market
              Street
                
                  uzviz Voznesens'kyj 23
              Purpose
                Office Premise
              Floor
                3 Floor
              Number of storeys
                6 storey house
                
              Total area
                110 м2
              General state
                With repair
              Price:
              45 700 UAH
              1 087 USD
            Description of the object
          Office space. Third floor, area - 110 m2, fourth floor - 127 m2. Open space, study, kitchenette, bathroom. Bright room with a beautiful view. All communications, round-the-clock security, Kontraktova Ploshcha metro station, Golden Gate - 15 minutes.
Additional Information
           
                   
                   
                   
                   
                   
                   
                   
                   
                   
                   
                   
                   
                   
                   
                   
                           
                           
                          