Аренда
 
              
                 
                Все фото (16)
              
              
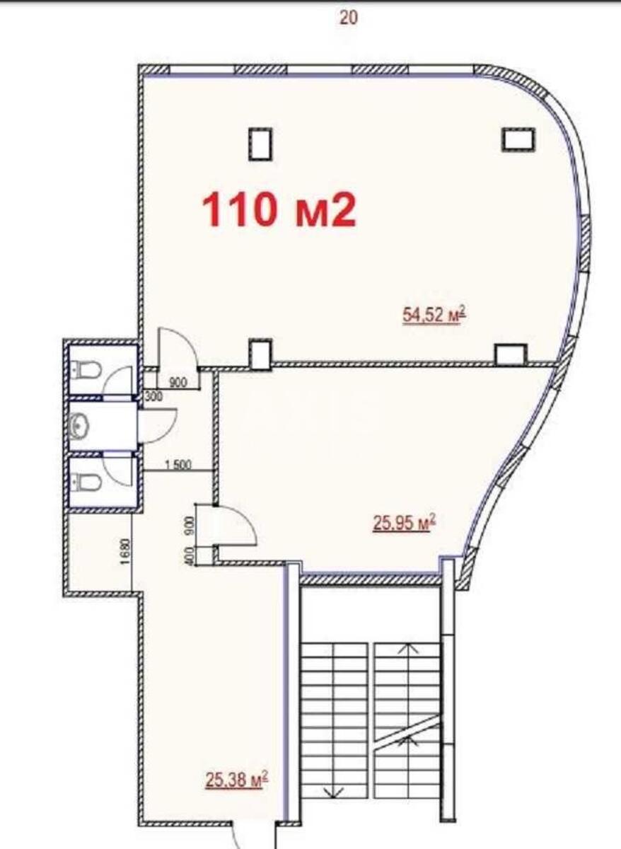
          Офис въезд Вознесенский 23, 110м2
- Добавить в избранное
- 
              Поделиться ссылкой
Тип рынка
                Вторичный рынок
              Улица
                
                  въезд Вознесенский 23
              Призначення
                Офисное помещение
              Этаж
                3 Этаж
              Этажность
                6 этажный дом
                
              Общая площадь
                110 м2
              Общее состояние
                С ремонтом
              Цена:
              45 700 грн.
              1 087 USD
            Описание объекта
          Офисное помещение. Третий этаж, площадь- 110 м2, четвертый этаж- 127 м2. Опенспейс, кабинет, миникухня, санузел. Светлое помещение с хорошим видом из окна. Все коммуникации, круглосуточная охрана, метро Контрактовая Площадь, Золотые ворота - 15 минут.
Дополнительная информация
           
                   
                   
                   
                   
                   
                   
                   
                   
                   
                   
                   
                   
                   
                   
                   
                           
                           
                          