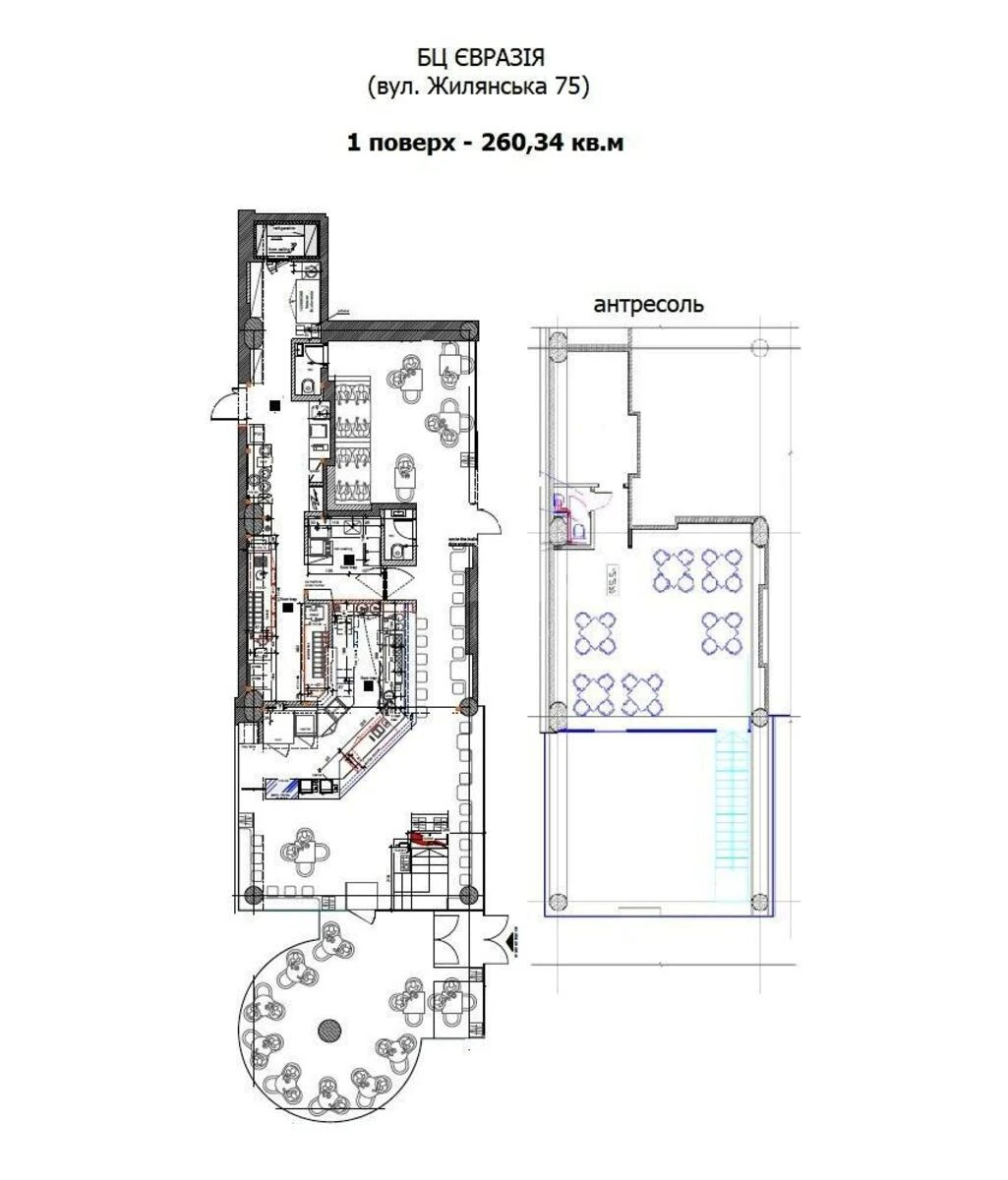
Объект торговли ул. Жилянская 74, 260м2

  • Голосеевский район ул. Жилянская 74
  • Код: RC-224-460
  • Добавлено: 01.05.2026
  • Добавить в избранное
Тип рынка
Вторичный рынок
Улица
ул. Жилянская 74
Призначення
Торговое помещение
Этаж
1 Этаж
Этажность
9 этажный дом
Общая площадь
260 м2
Общее состояние
С ремонтом
Цена:
206 233 грн.
4 680 USD
Описание объекта

Офисное помещение. Формат: фасадное помещение с антресолью. Имеется зона разгрузки. Состояние: «как есть» (shell & core). Коммунальные услуги (электроэнергия, газ, вода, водоотведение) — по счетчикам или пропорционально площади.

Похожие предложения