Trade object vul. Zhyljans'ka 74, 260m2

  • Holosiivskyi District vul. Zhyljans'ka 74
  • Code: RC-224-460
  • Added by: 01.05.2026
  • Add to favorites
Market type
Secondary market
Street
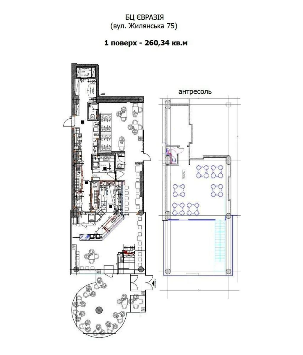
vul. Zhyljans'ka 74
Purpose
Trade Premise
Floor
1 Floor
Number of storeys
9 storey house
Total area
260 м2
General state
With repair
Price:
206 233 UAH
4 680 USD
Description of the object

Office space. Layout: street-facing premises with a mezzanine. Loading bay available. Condition: ‘as is’ (shell & core). Utilities (electricity, gas, water, drainage) — metered or charged pro rata to floor area.

Similar offers