Объект торговли ул. Самойло Кошки 19/14, 240м2

  • Голосеевский район ул. Самойло Кошки 19/14
  • Код: RC-218-456
  • Добавлено: 27.11.2025
  • Добавить в избранное
Тип рынка
Вторичный рынок
Улица
ул. Самойло Кошки 19/14
Призначення
Торговое помещение
Этаж
1 Этаж
Этажность
18 этажный дом
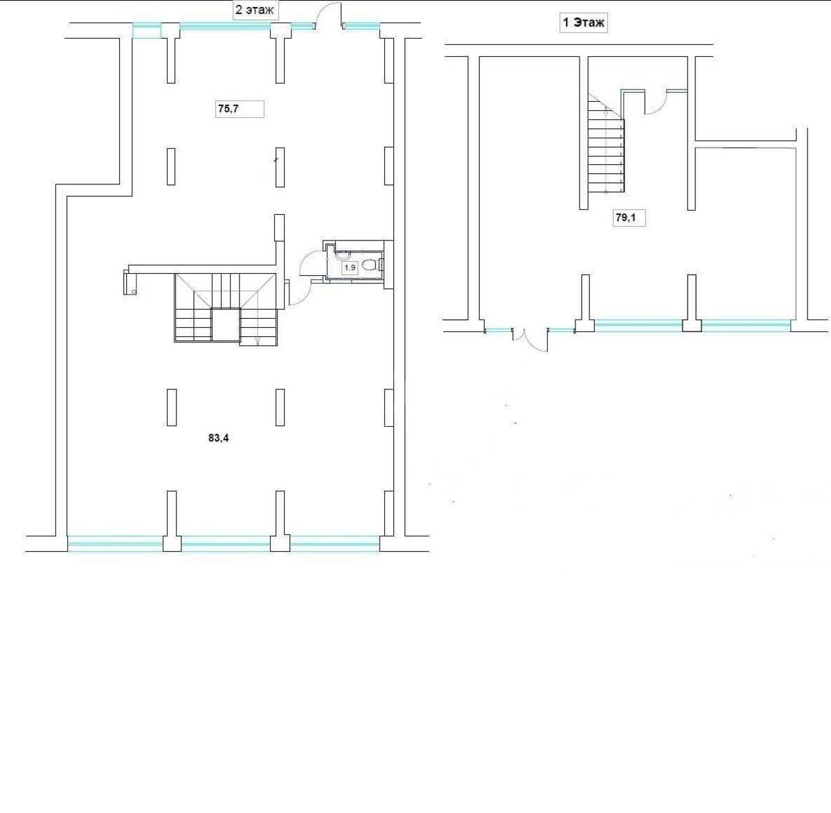
Общая площадь
240 м2
Общее состояние
С ремонтом
Цена:
147 983 грн.
3 500 USD
  • AXIS Real Estate
  • AXIS Real Estate
  • AXIS Real Estate
Описание объекта

ЖК "Венеция", помещение свободного назначения. Общая площадь 240 метров. Отдельный фасадный вход, а также отдельный со двора (на второй этаж помещения, но со двора идет как первый) Большие витрины с фасада и со двора. В помещении сделан современный ремонт в светлых тонах, он полностью готов к эксплуатации. Мощность электроэнергии 40 кВт. Наличие отдельного вентиляционного канала с выходом на крышу. Отопление центральное с установленными счетчиками тепла. В помещении установлена пожарная и охранная сигнализация, система видеонаблюдения. Кондиционирование.

Дополнительная информация