Продажа

Все фото (10)
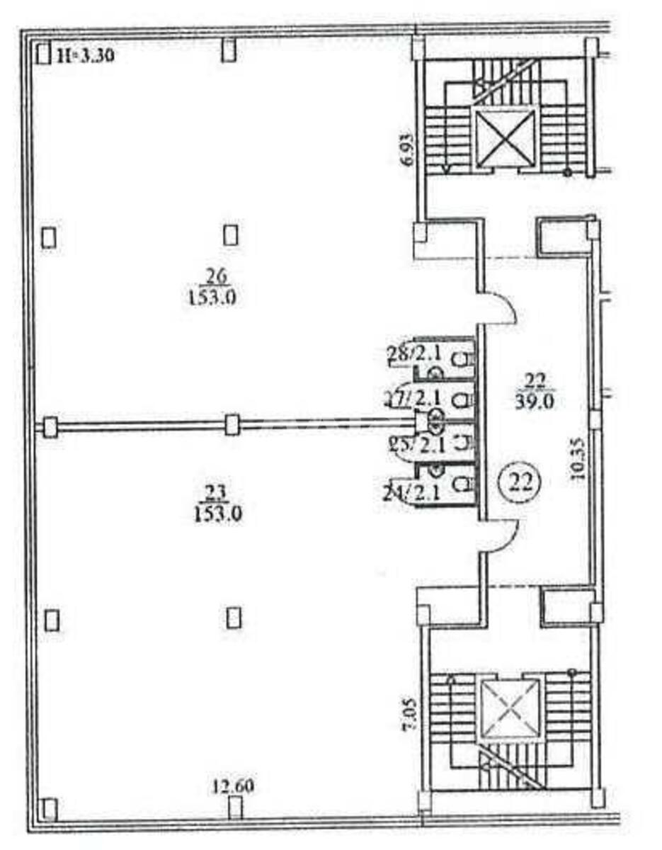
Объект торговли ул. Северо-Сырецкая 1/3, 720м2
- Добавить в избранное
-
Поделиться ссылкой
Тип рынка
Вторичный рынок
Улица
ул. Северо-Сырецкая 1/3
Призначення
Торговое помещение
Этаж
3 Этаж
Этажность
7 этажный дом
Общая площадь
720 м2
Общее состояние
Без ремонта
Цена:
32 191 549 грн.
780 000 USD
Описание объекта
Помещение свободного назначения. Возле будущей станции метро Сырецкая, напротив ЖК Диброва Парк. Универсальное нежилое помещение общей площадью 720 кв.м. (360 кв.м. - 3 этаж + 360 кв.м. - 5 этаж). Продается вместе или отдельно. Помещения имеют открытую планировку с черновой отделкой стен, пола, потолка.
Дополнительная информация