Sell

All photos (10)
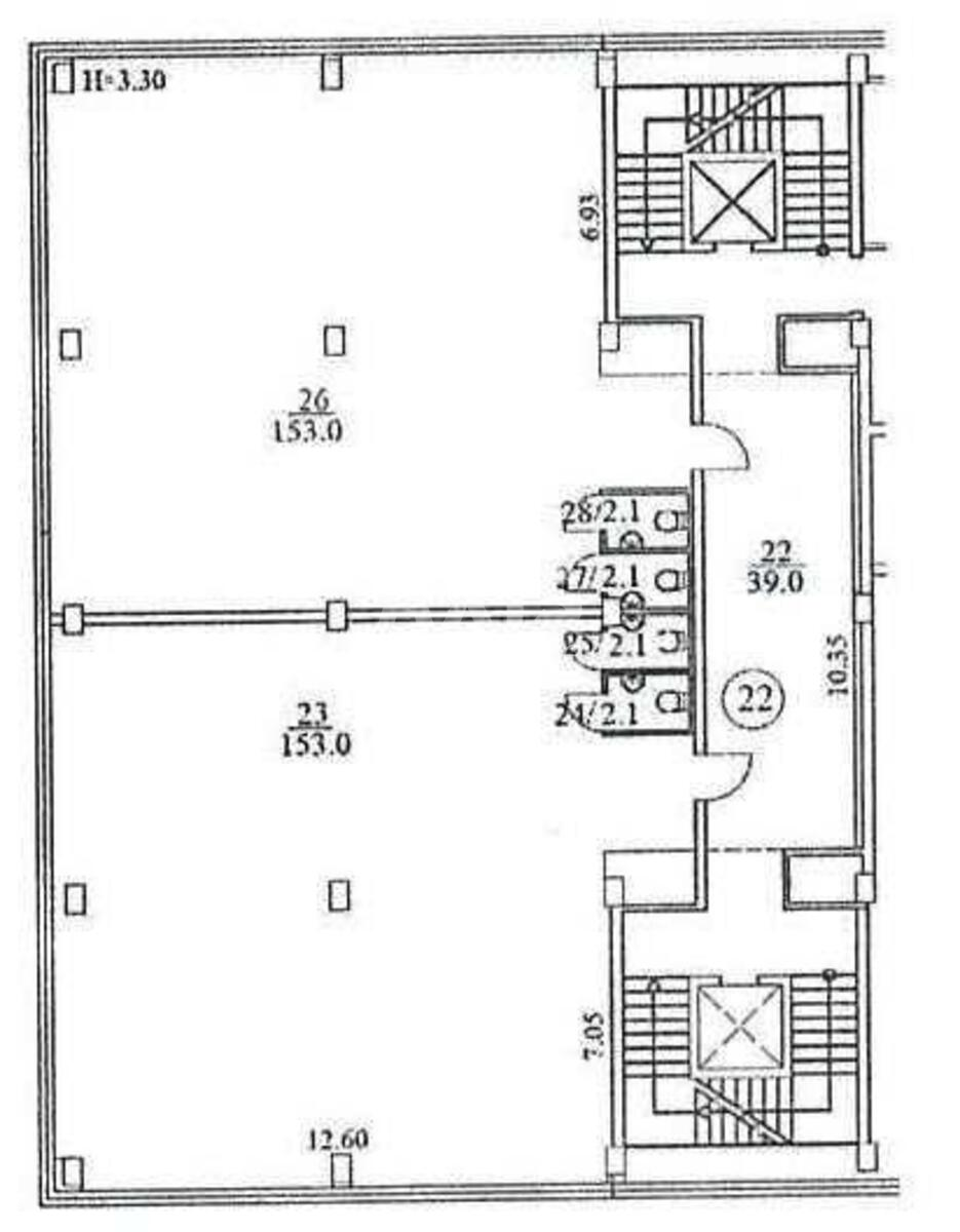
Trade object vul. Pivnichno-Syrec'ka 1/3, 720m2
- Add to favorites
-
Share link
Market type
Secondary market
Street
vul. Pivnichno-Syrec'ka 1/3
Purpose
Trade Premise
Floor
3 Floor
Number of storeys
7 storey house
Total area
720 м2
General state
Without repair
Price:
32 191 549 UAH
780 000 USD
Description of the object
The premises are free for use. Near the future Syretska metro station, opposite the residential complex Dibrova Park. Universal non-residential premises with a total area of 720 sq.m. (360 sq.m. - 3rd floor + 360 sq.m. - 5th floor). For sale together or separately. The premises have an open plan with a rough finish of walls, floor, ceiling.
Additional Information