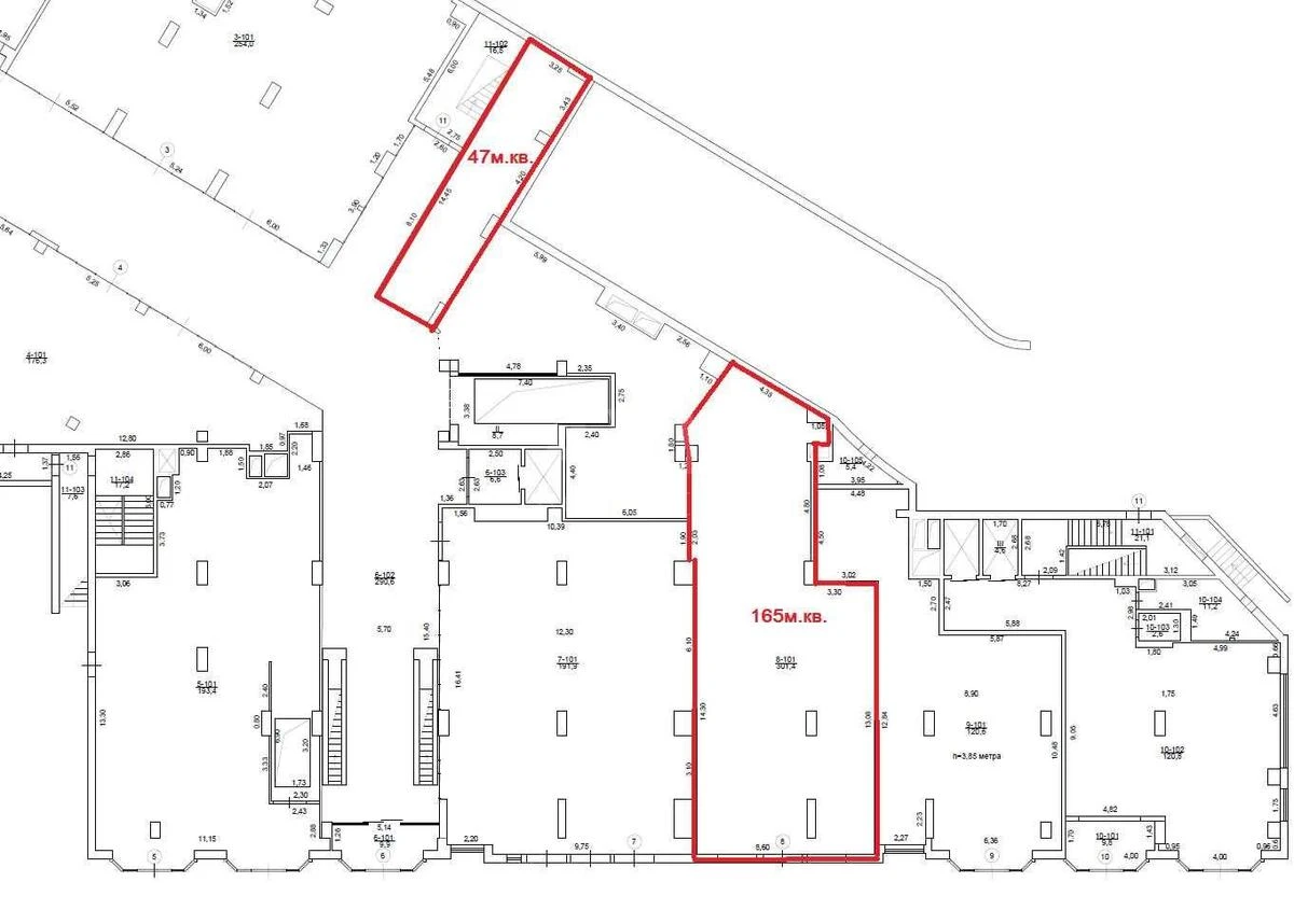
Объект торговли ул. Нижний Вал 3/7, 47м2

  • Подольский район ул. Нижний Вал 3/7
  • Код: RC-222-965
  • Добавлено: 25.03.2026
  • Добавить в избранное
Тип рынка
Вторичный рынок
Улица
ул. Нижний Вал 3/7
Призначення
Торговое помещение
Этаж
1 Этаж
Этажность
8 этажный дом
Общая площадь
47 м2
Общее состояние
Без ремонта
Цена:
61 608 грн.
1 410 USD
Описание объекта

Помещения свободного назначения. Помещения офисного центра класса В+ на 3–8 этажах — 10 702 м². Парковки (подземная, наземная и на крыше 2-го этажа) — 128 мест. Бомбоубежище и резервное электропитание. Технические характеристики: электропитание 3-й категории надежности – 2 отдельных ввода по 1 МВт, приточно-вытяжная вентиляция, отопление и кондиционирование – фанкойлы, городское водоснабжение; системы дымоудаления, пожаротушения (спринклер), оптоволоконный интернет, молниезащита, охрана и видеонаблюдение.

Похожие предложения