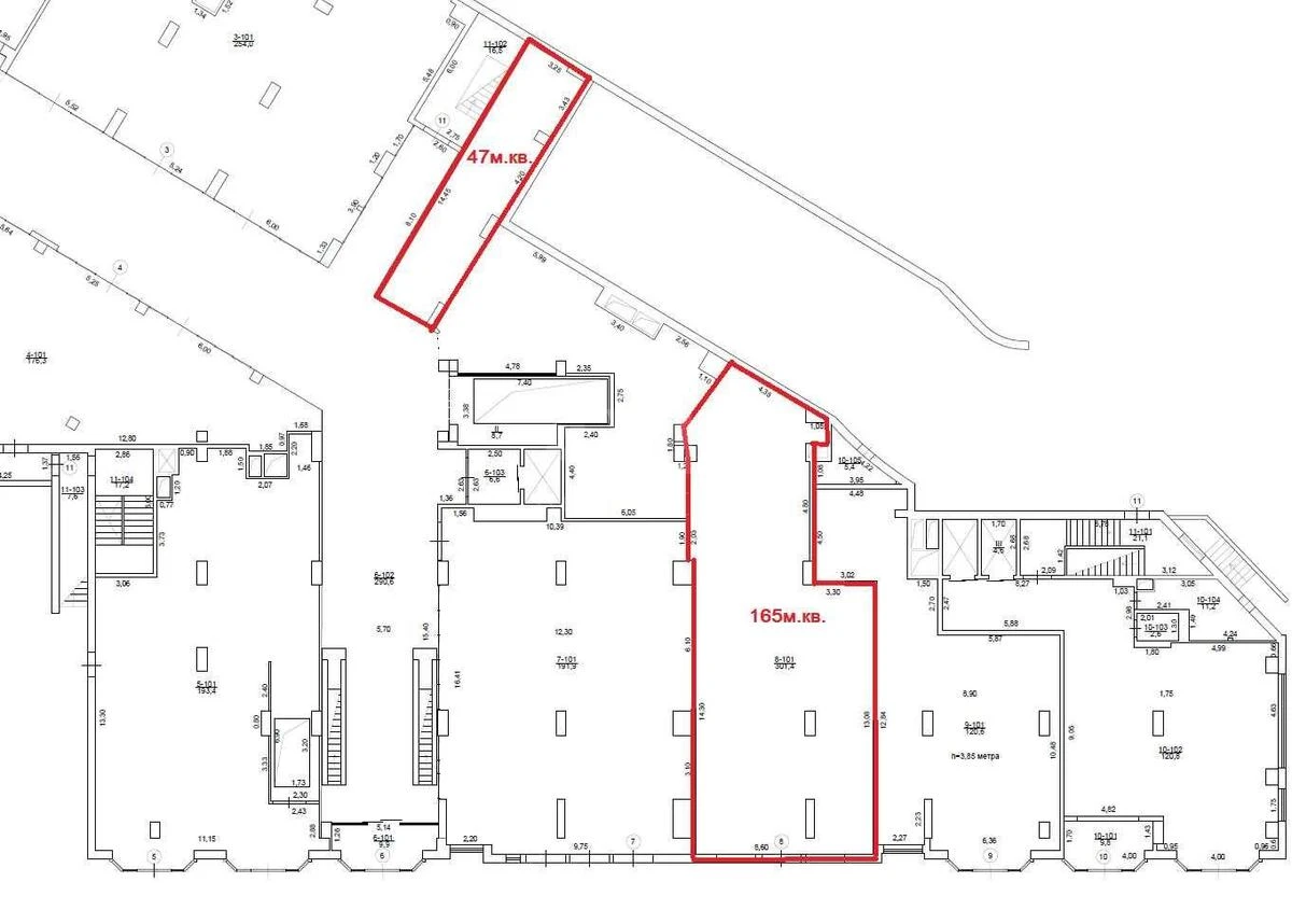
Trade object vul. Nyzhnij Val 3/7, 47m2

  • Podilskyi District vul. Nyzhnij Val 3/7
  • Code: RC-222-965
  • Added by: 25.03.2026
  • Add to favorites
Market type
Secondary market
Street
vul. Nyzhnij Val 3/7
Purpose
Trade Premise
Floor
1 Floor
Number of storeys
8 storey house
Total area
47 м2
General state
Without repair
Price:
61 608 UAH
1 410 USD
Description of the object

Multi-purpose premises. Class B+ office centre premises, floors 3–8 – 10,702 m². Car parks (underground, ground-level and on the roof of the 2nd floor) – 128 spaces. Air-raid shelter and backup power supply. Technical specifications: Category 3 power supply – 2 separate 1 MW feeds; supply and extract ventilation; heating and air conditioning – fan coils; mains water supply; smoke extraction and fire extinguishing systems (sprinkler), fibre-optic internet, lightning protection, security and CCTV.

Similar offers