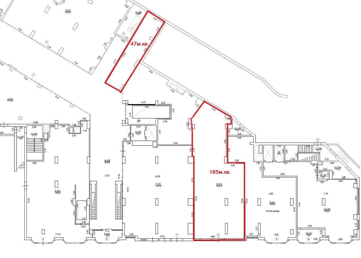
Объект торговли ул. Нижний Вал 3/7, 47м2

  • Подольский район ул. Нижний Вал 3/7
  • Код: RC-219-402
  • Добавлено: 25.02.2026
  • Добавить в избранное
Тип рынка
Вторичный рынок
Улица
ул. Нижний Вал 3/7
Призначення
Торговое помещение
Этаж
1 Этаж
Этажность
8 этажный дом
Общая площадь
47 м2
Общее состояние
С ремонтом
Цена:
61 066 грн.
1 410 USD
Описание объекта

Помещение свободного назначения. Концепция торгово-офисного центра "Все необходимое для делового человека в одном месте" предусматривает размещение следующих заведений: продуктовый супермаркет АТБ, кафе, общественное питание, рестораны, магазины мужской и женской одежды/обуви, магазины парфюмерии и косметики, магазин аксессуаров и сувениров, аптека/оптика, стоматология, медицинский центр, спорт-фитнес зал/магазин спортивной одежды и питания и прочее.

Похожие предложения