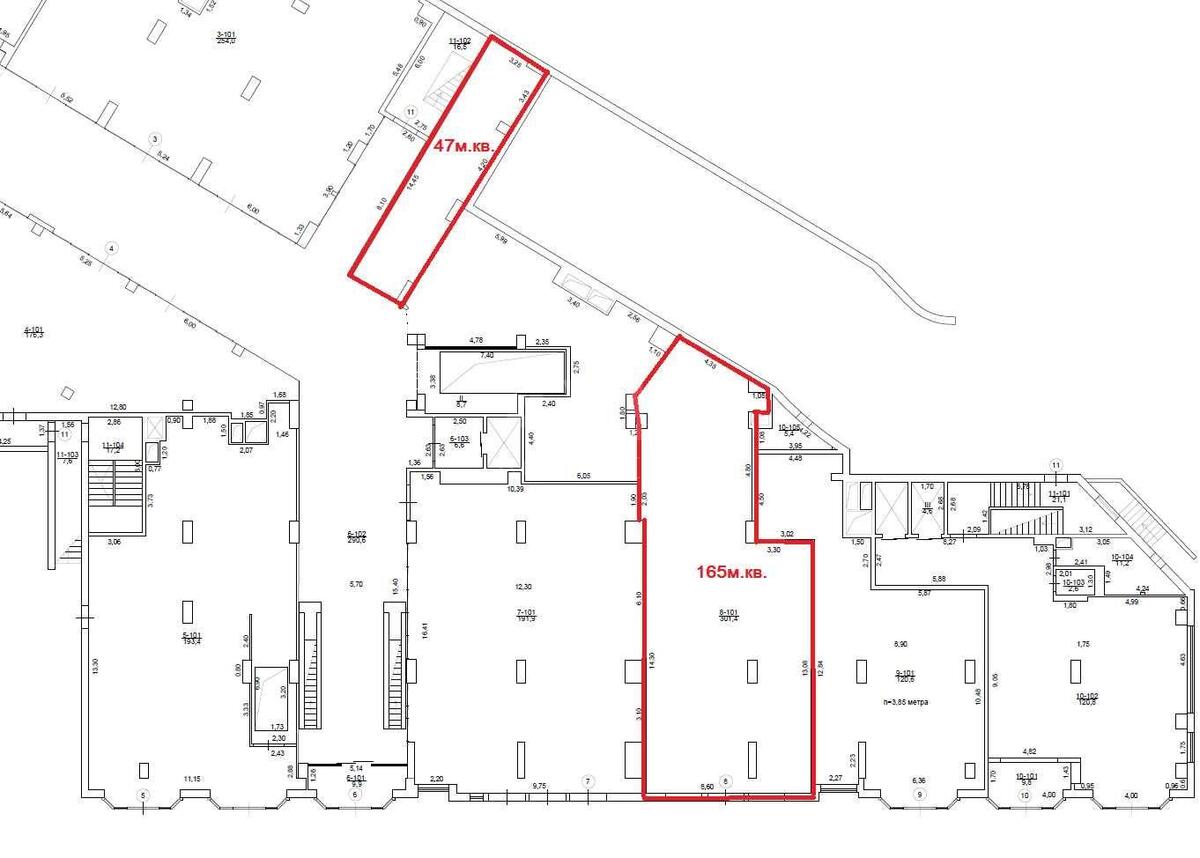
Trade object vul. Nyzhnij Val 3/7, 47m2

  • Podilskyi District vul. Nyzhnij Val 3/7
  • Code: RC-219-402
  • Added by: 25.02.2026
  • Add to favorites
Market type
Secondary market
Street
vul. Nyzhnij Val 3/7
Purpose
Trade Premise
Floor
1 Floor
Number of storeys
8 storey house
Total area
47 м2
General state
With repair
Price:
61 066 UAH
1 410 USD
Description of the object

Premises for free use. The concept of the shopping and office center "Everything a business person needs in one place" envisages the placement of the following establishments: ATB grocery supermarket, cafes, catering, restaurants, men's and women's clothing/shoes stores, perfume and cosmetics stores, accessories and souvenirs store, pharmacy/optics, dentistry, medical center, sports and fitness center/sportswear and nutrition store, etc.

Similar offers