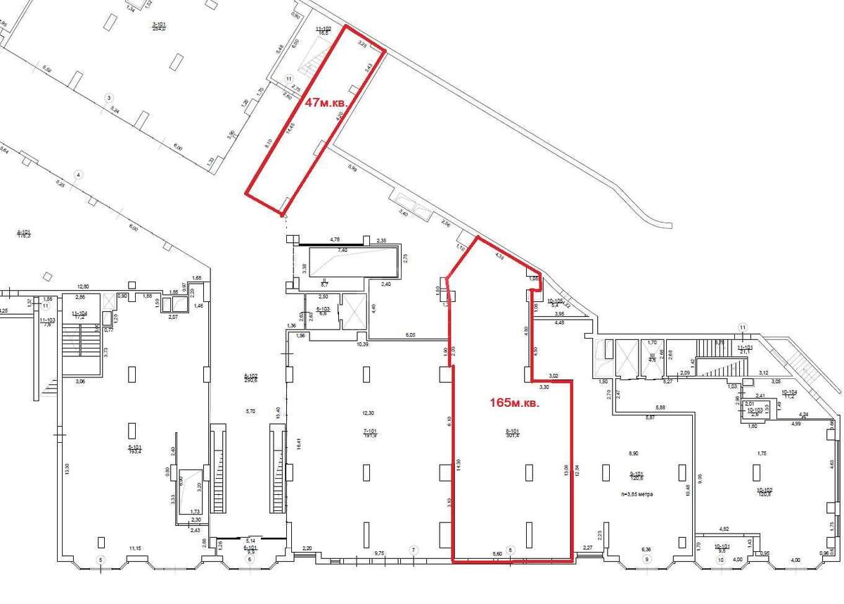
Объект торговли ул. Нижний Вал 3/7, 165м2

  • Подольский район ул. Нижний Вал 3/7
  • Код: RC-219-404
  • Добавлено: 25.02.2026
  • Добавить в избранное
Тип рынка
Вторичный рынок
Улица
ул. Нижний Вал 3/7
Призначення
Торговое помещение
Этаж
1 Этаж
Этажность
8 этажный дом
Общая площадь
165 м2
Общее состояние
С ремонтом
Цена:
285 844 грн.
6 600 USD
Описание объекта

Помещение свободного назначения. Технические характеристики: электропитание 3 категории надежности - 2 отдельных ввода по 1МВт., приточно-вытяжная вентиляция, отопление и кондиционирование - фанкойлы, городское водоснабжение; системы дымоудаления, пожаротушения (сплинкер), оптоволоконный интернет, молниезащита, охрана и видео наблюдение. Вход с улицы расположен по середине здания, как раз напротив центральной дорожки.

Похожие предложения