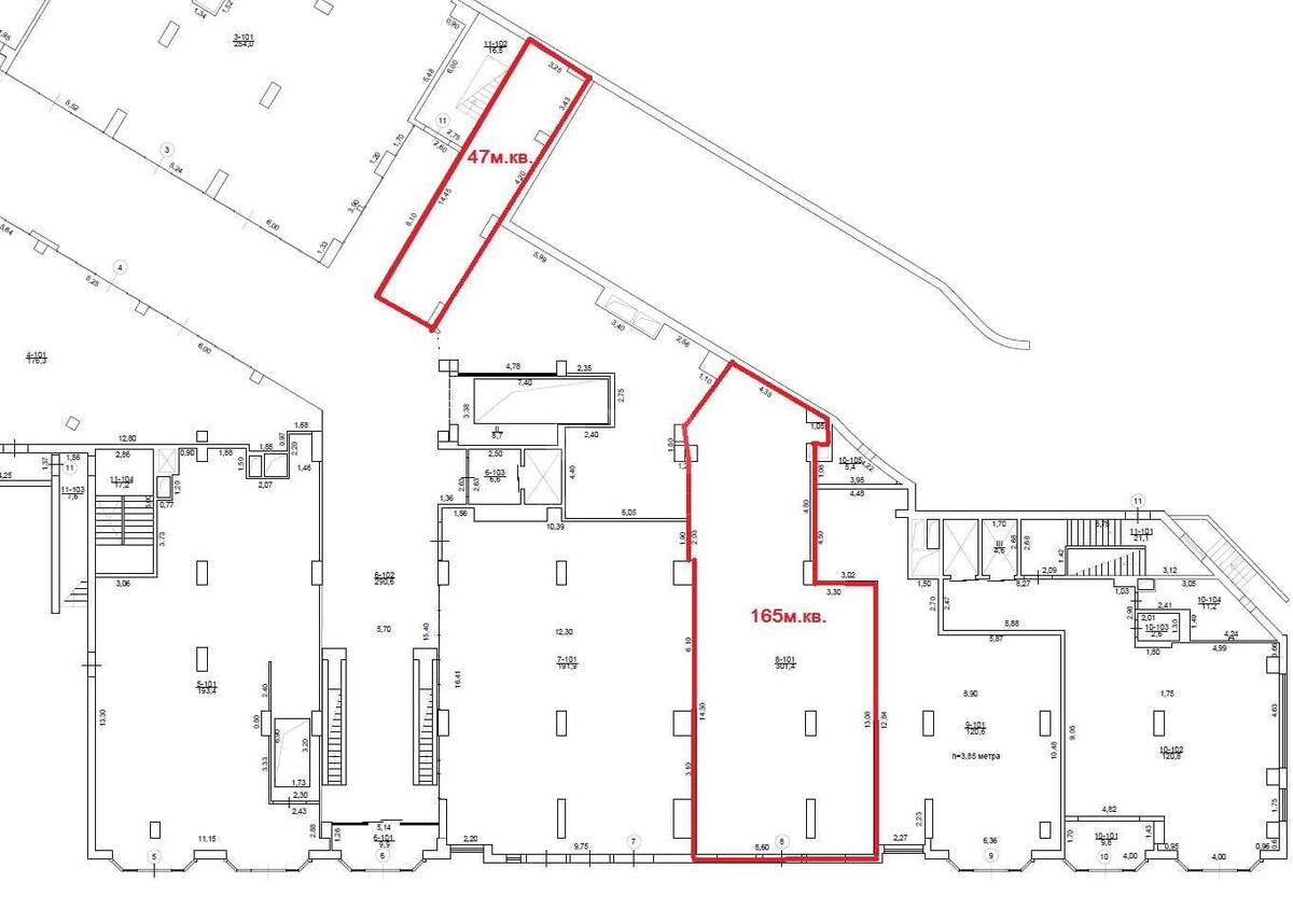
Trade object vul. Nyzhnij Val 3/7, 165m2

  • Podilskyi District vul. Nyzhnij Val 3/7
  • Code: RC-219-404
  • Added by: 25.02.2026
  • Add to favorites
Market type
Secondary market
Street
vul. Nyzhnij Val 3/7
Purpose
Trade Premise
Floor
1 Floor
Number of storeys
8 storey house
Total area
165 м2
General state
With repair
Price:
285 844 UAH
6 600 USD
Description of the object

The premises are for free use. Technical specifications: power supply of the 3rd reliability category - 2 separate inputs of 1 MW each, supply and exhaust ventilation, heating and air conditioning - fan coil units, municipal water supply; smoke removal systems, fire extinguishing systems (sprinklers), fiber optic Internet, lightning protection, security and video surveillance. The entrance from the street is located in the middle of the building, just opposite the central walkway.

Similar offers