Sell

All photos (5)
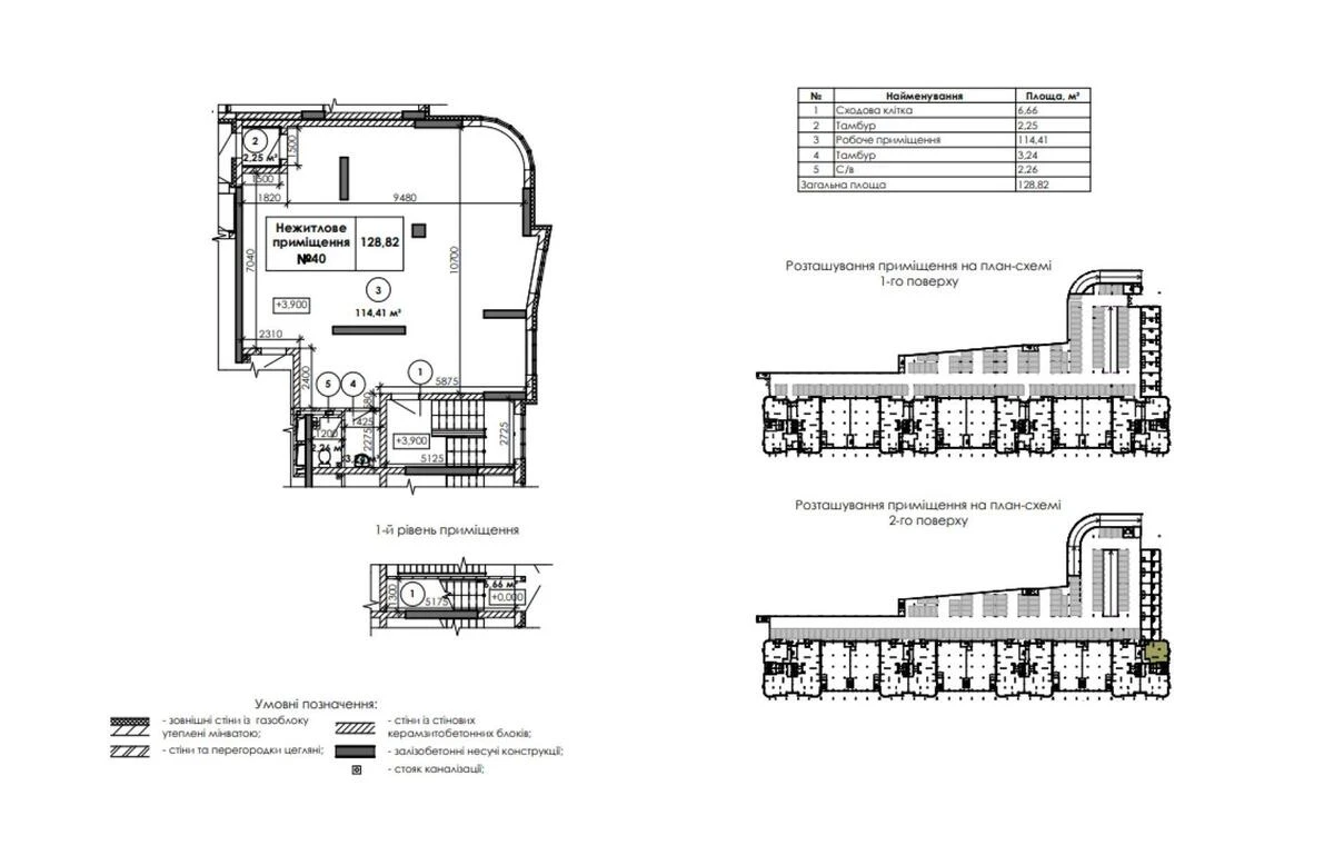
Trade object vul. Klemans'ka 7, 129m2
- Add to favorites
-
Share link
Market type
Secondary market
Street
vul. Klemans'ka 7
Purpose
Trade Premise
Floor
2 Floor
Number of storeys
2 storey house
Total area
129 м2
General state
Without repair
Price:
7 233 598 UAH
175 000 USD
Description of the object
Urlovskyi-2 residential complex, free premises. Ceiling height 3.5 m, stained glass panoramic windows, cement-sand screed, copper wiring, heating radiators, fire alarm, meters on the floor. The complex is designed for 5000 - 6000 residents, there is a road nearby, which will attract many customers to your front office.
Additional Information