Продажа

Все фото (4)
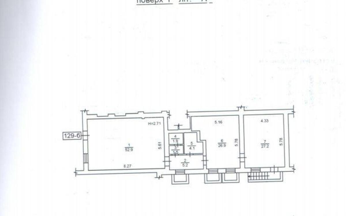
Объект торговли ул. Антонова Авиаконструктора 4, 119м2
- Добавить в избранное
-
Поделиться ссылкой
Тип рынка
Вторичный рынок
Улица
ул. Антонова Авиаконструктора 4
Призначення
Торговое помещение
Этаж
1 Этаж
Этажность
5 этажный дом
Общая площадь
119 м2
Общее состояние
С ремонтом
Цена:
6 183 709 грн.
150 000 USD
Описание объекта
Помещение свободного назначения. Помещение идеально подходит под ресторан с возможностью сделать свою террасу. Также подойдет под любой другой вид деятельности: почта, банк, кафе и др. Есть возможность увеличения мощности. Удобно парковаться всегда есть место. Рядом сильная инфраструктура, супермаркеты: Билла, АТБ; ПриватБанк, Новая Почта. Оживленное место.
Дополнительная информация