Sell

All photos (4)
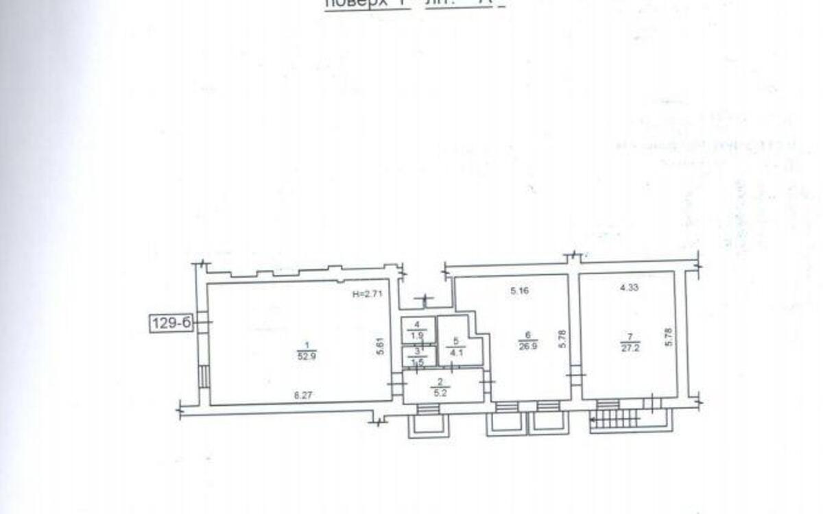
Trade object vul. Antonova Aviakonstruktora 4, 119m2
- Add to favorites
-
Share link
Market type
Secondary market
Street
vul. Antonova Aviakonstruktora 4
Purpose
Trade Premise
Floor
1 Floor
Number of storeys
5 storey house
Total area
119 м2
General state
With repair
Price:
6 183 709 UAH
150 000 USD
Description of the object
The premises are for free use. The premises are ideal for a restaurant with the possibility to make a terrace. Also suitable for any other type of activity: post office, bank, cafe, etc. There is a possibility of increasing the capacity. There is always a convenient parking place. Strong infrastructure, supermarkets nearby: Billa, ATB; PrivatBank, Nova Poshta. A lively place.
Additional Information