Продажа
 
              
                 
                Все фото (6)
              
              
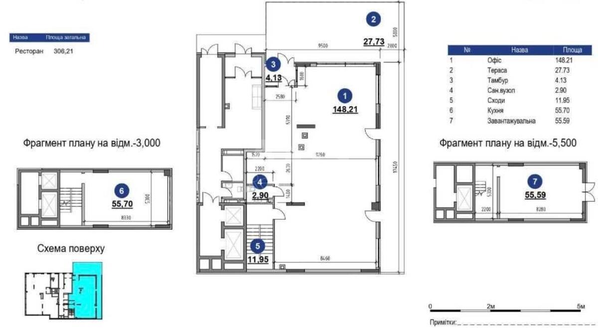
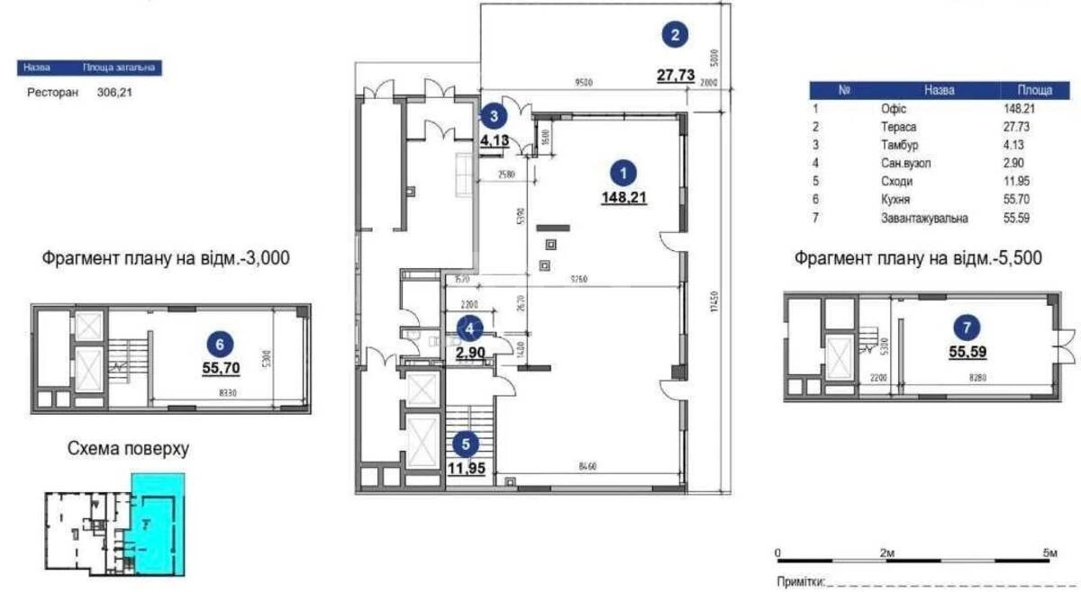
          Объект торговли шоссе Железнодорожное 45А, 306м2
- Добавить в избранное
- 
              Поделиться ссылкой
Тип рынка
                Вторичный рынок
              Улица
                
                  шоссе Железнодорожное 45А
              Призначення
                Торговое помещение
              Этаж
                1 Этаж
              Этажность
                18 этажный дом
                
              Общая площадь
                306 м2
              Общее состояние
                Без ремонта
              Цена:
              32 735 503 грн.
              779 304 USD
            Описание объекта
          ЖК Nordica Residence, помещение свободного назначения. Преимущества: подъезд автомобилем, панорамные окна, трехуровневое помещение, собственная терраса. Сильные стороны. Выгодное место в новом ЖК - современное здание, возможен рост стоимости по мере завершения строительства и заселения. Панорамные окна и собственная терраса - очень привлекательны для шоурума, офиса премиум-класса или брендовой фирмы.
Дополнительная информация
           
                   
                   
                   
                   
                   
                          