Sell
 
              
                 
                All photos (6)
              
              
          Trade object shose Zaliznychne 45А, 306m2
- Add to favorites
- 
              Share link
Market type
                Secondary market
              Street
                
                  shose Zaliznychne 45А
              Purpose
                Trade Premise
              Floor
                1 Floor
              Number of storeys
                18 storey house
                
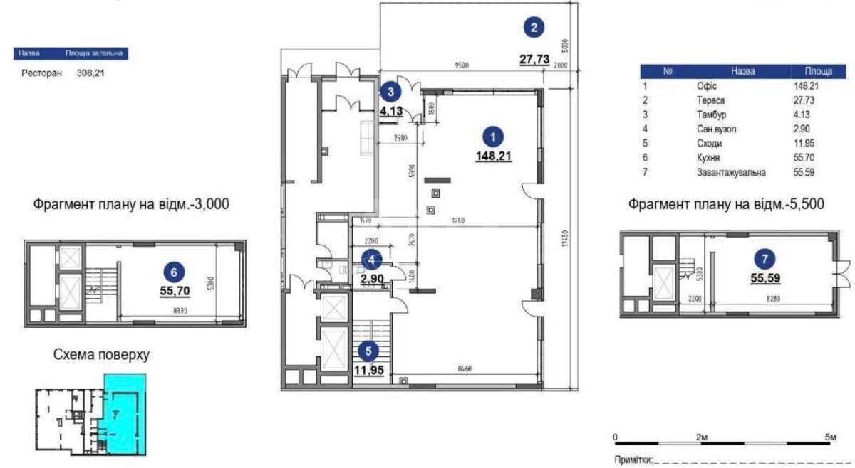
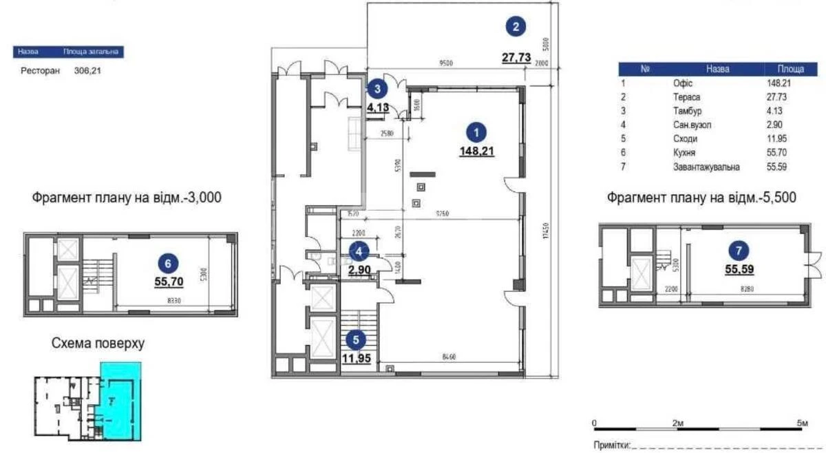
              Total area
                306 м2
              General state
                Without repair
              Price:
              32 735 503 UAH
              779 304 USD
            Description of the object
          Nordica Residence residential complex, free-use premises. Advantages: access by car, panoramic windows, three-level premises, private terrace. Strengths. Favorable location in the new residential complex - a modern building, the cost may increase as the construction is completed and the residents move in. Panoramic windows and a private terrace are very attractive for a showroom, premium office or branded company.
Additional Information
           
                   
                   
                   
                   
                   
                          