Продажа

Все фото (12)
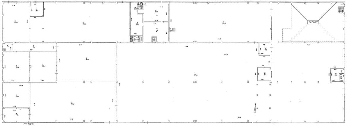
Объект сервиса ул. Хвылевого Николая 15, 12000м2
- Добавить в избранное
-
Поделиться ссылкой
Тип рынка
Вторичный рынок
Улица
ул. Хвылевого Николая 15
Призначення
Сервисный объект
Этаж
1 Этаж
Этажность
2 этажный дом
Общая площадь
12000 м2
Общее состояние
Без ремонта
Цена:
165 339 384 грн.
4 000 000 USD
Описание объекта
Помещение свободного назначения. Здания и сооружения на земельном участке с инженерными коммуникациями, пожарной и охранной системами безопасности. Производственное оборудование и его ремонтная база. База квалифицированного персонала для обеспечения заявленной рентабельной коммерческой деятельности. Подведенная энергетическая мощность составляет 240 квт. электрической энергии. Есть возможность расширения потребления до 1000 квт.
Дополнительная информация