Sell

All photos (12)
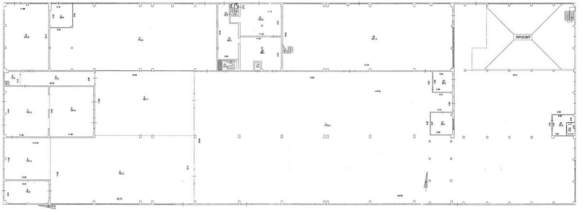
Service object vul. Hvyl'ovogo Mykoly 15, 12000m2
- Add to favorites
-
Share link
Market type
Secondary market
Street
vul. Hvyl'ovogo Mykoly 15
Purpose
Service Object
Floor
1 Floor
Number of storeys
2 storey house
Total area
12000 м2
General state
Without repair
Price:
165 339 384 UAH
4 000 000 USD
Description of the object
Premises for free use. Buildings and structures on the land plot with utilities, fire and security systems. Production equipment and its repair base. A base of qualified personnel to ensure the declared profitable commercial activity. The supplied power capacity is 240 kW of electricity. It is possible to expand consumption up to 1000 kW.
Additional Information