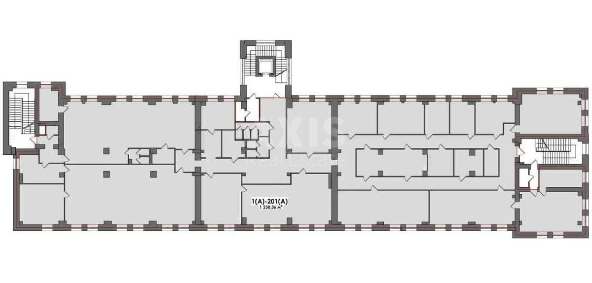
Офис ул. Телиги Елены 6, 1230м2

  • Шевченковский район ул. Телиги Елены 6
  • Код: RC-222-728
  • Добавлено: 19.03.2026
  • Добавить в избранное
Тип рынка
Вторичный рынок
Улица
ул. Телиги Елены 6
Призначення
Офисное помещение
Этаж
2 Этаж
Этажность
5 этажный дом
Общая площадь
1230 м2
Общее состояние
С ремонтом
Цена:
1 226 727 грн.
27 895 USD
Описание объекта

Офисное помещение. Бесперебойное электроснабжение (генератор). Автономное отопление, водоснабжение и канализация. Мультизональная система кондиционирования и вентиляции. Бесперебойный интернет (оптическое волокно). Видеонаблюдение. Доступ к помещению 24/7. Круглосуточная охрана и контроль доступа.

Похожие предложения