Офис ул. Саксаганского 119, 57м2

  • Шевченковский район ул. Саксаганского 119
  • Код: SC-219-948
  • Добавлено: 25.02.2026
  • Добавить в избранное
Тип рынка
Вторичный рынок
Улица
ул. Саксаганского 119
Призначення
Офисное помещение
Этаж
4 Этаж
Этажность
12 этажный дом
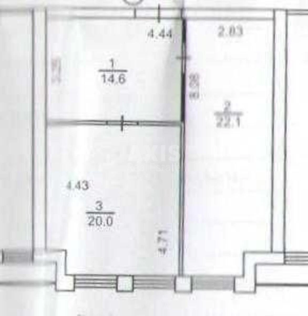
Общая площадь
57 м2
Общее состояние
С ремонтом
Цена:
5 648 461 грн.
130 420 USD
Описание объекта

Офисное помещение. Большие окна на фасад здания, на улицу. 4-й этаж 2 лифта. На этаже в целом 7 офисов. Постоянно сдан в аренду. Офисная мебель в офисе. Скоростной интернет, серверный шкаф в офисе. Кондиционер. Круглосуточная охрана БЦ, видеонаблюдение, пожарная охрана. Возможность купить арендовать паркоместо в подземном паркинге.

Похожие предложения