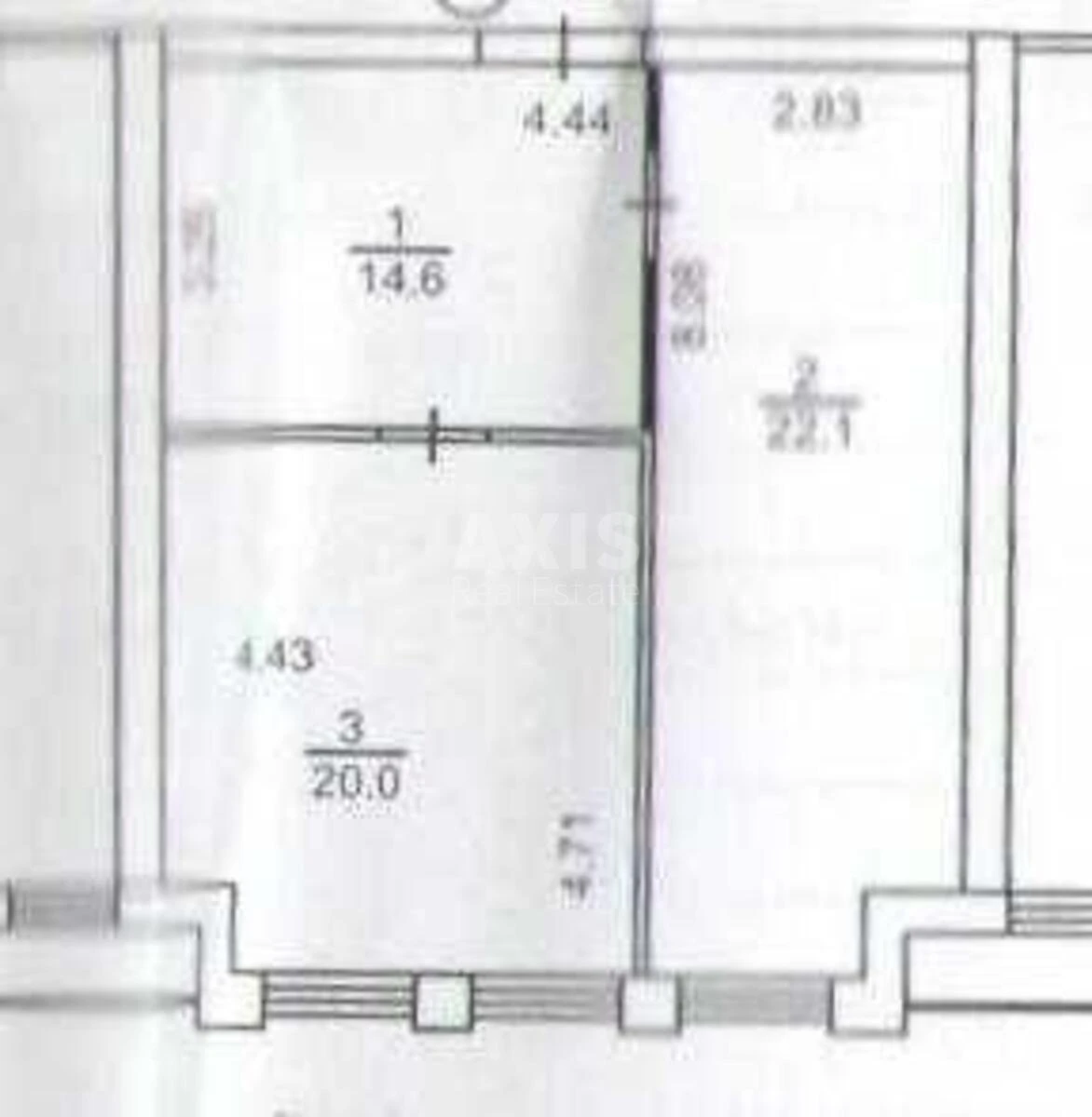
Office vul. Saksagans'kogo 119, 57m2

  • Shevchenkivskyi District vul. Saksagans'kogo 119
  • Code: SC-219-948
  • Added by: 25.02.2026
  • Add to favorites
Market type
Secondary market
Street
vul. Saksagans'kogo 119
Purpose
Office Premise
Floor
4 Floor
Number of storeys
12 storey house
Total area
57 м2
General state
With repair
Price:
5 648 461 UAH
130 420 USD
Description of the object

Office space. Large windows on the facade of the building, on the street. 4th floor. 2 elevators. There are a total of 7 offices on the floor. Constantly rented out. Office furniture. High-speed internet, server cabinet in the office. Air conditioning. Round-the-clock security of the business center, video surveillance, fire protection. Possibility to buy or rent a parking space in the underground parking lot.

Similar offers