Аренда

Все фото (18)
Офис ул. Руставели Шота 44, 180м2
- Добавить в избранное
-
Поделиться ссылкой
Тип рынка
Вторичный рынок
Улица
ул. Руставели Шота 44
Призначення
Офисное помещение
Этаж
6 Этаж
Этажность
20 этажный дом
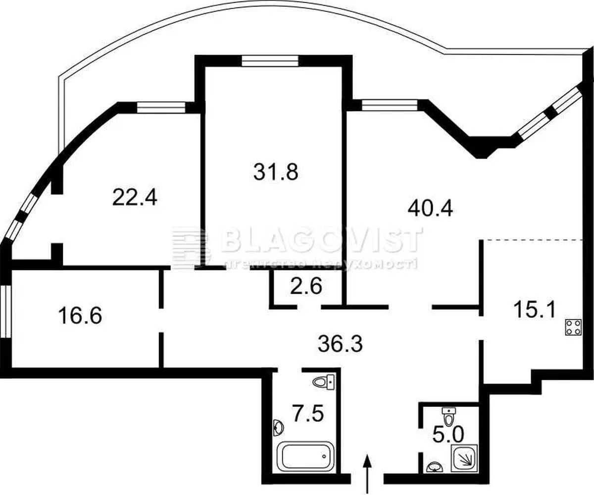
Общая площадь
180 м2
Общее состояние
С ремонтом
Цена:
74 204 грн.
1 800 USD
Описание объекта
Офисное помещение. Дворец спорта, льва толстого, олимпийская, площадь украинских героев, центр. Функциональный офис в центре города. 180м.кв. 6 этаж 5 раздельных кабинетов, рецепшин, с.у., балкон, кухня, частично мебель. В жилом фонде.
Дополнительная информация