Аренда

Все фото (14)
Офис ул. Оболонская 39, 107м2
- Добавить в избранное
-
Поделиться ссылкой
Тип рынка
Вторичный рынок
Улица
ул. Оболонская 39
Призначення
Офисное помещение
Этаж
1 Этаж
Этажность
4 этажный дом
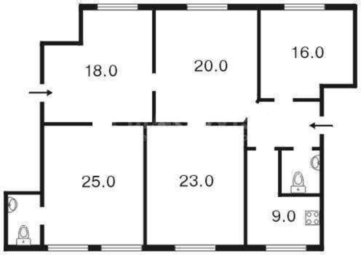
Общая площадь
107 м2
Общее состояние
С ремонтом
Цена:
35 000 грн.
840 USD
Описание объекта
Офисное помещение. Первый этаж, два отдельных входа. Площадь - 107 м2. 5 кабинетов, кухня, санузел. Жилой фонд (невысокие коммунальные). Все коммуникации, метро Тараса Шевченко - 5 минут. Дополнительно коммунальные платежи. Хорошая локация.
Дополнительная информация