Rent

All photos (14)
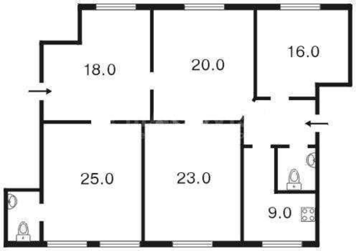
Office vul. Obolons'ka 39, 107m2
- Add to favorites
-
Share link
Market type
Secondary market
Street
vul. Obolons'ka 39
Purpose
Office Premise
Floor
1 Floor
Number of storeys
4 storey house
Total area
107 м2
General state
With repair
Price:
35 000 UAH
840 USD
Description of the object
Office space. Ground floor, two separate entrances. The area is 107 m2. 5 offices, kitchen, bathroom. Housing stock (small utilities). All communications, Taras Shevchenko metro station - 5 minutes. Additional utility bills. Good location.
Additional Information