Аренда
 
              
                 
                Все фото (14)
              
              
          Офис ул. Нижний Вал 15, 98м2
- Добавить в избранное
- 
              Поделиться ссылкой
Тип рынка
                Вторичный рынок
              Улица
                
                  ул. Нижний Вал 15
              Призначення
                Офисное помещение
              Этаж
                6 Этаж
              Этажность
                6 этажный дом
                
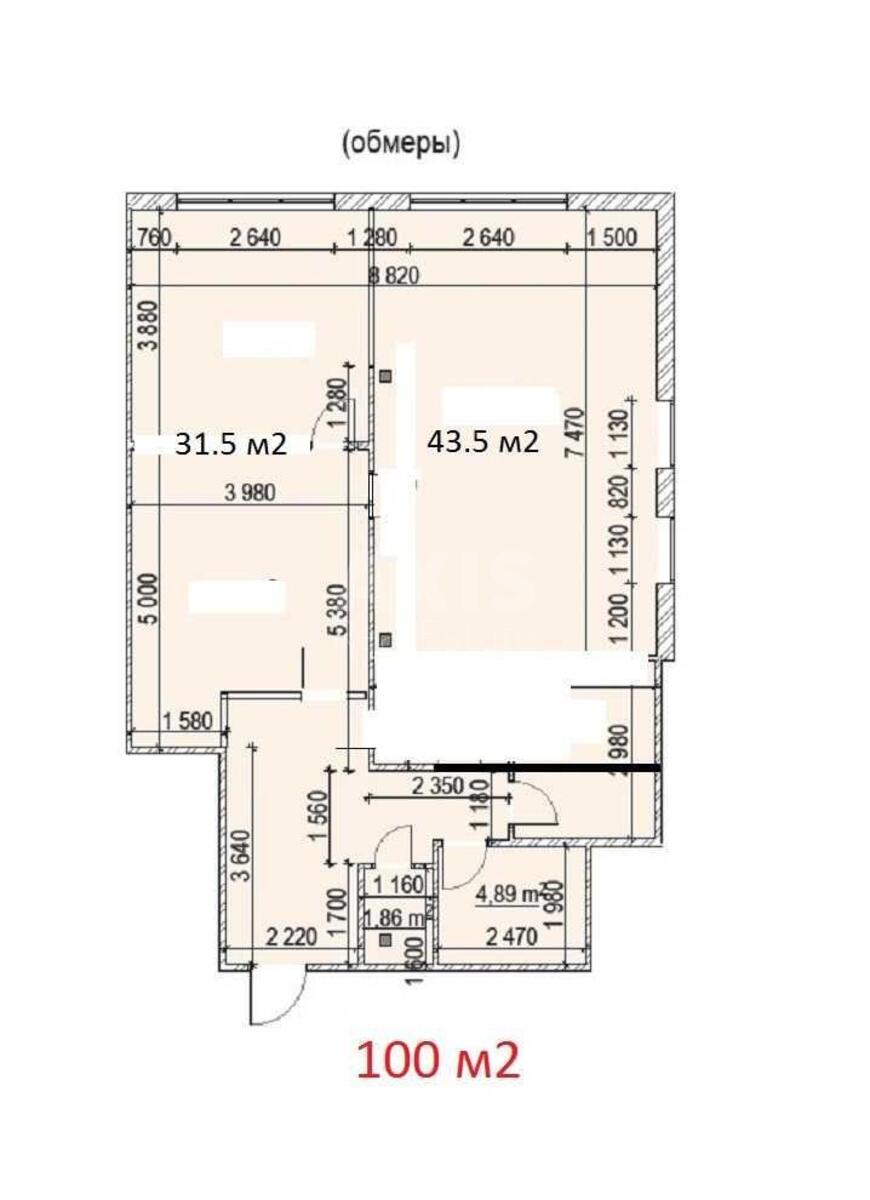
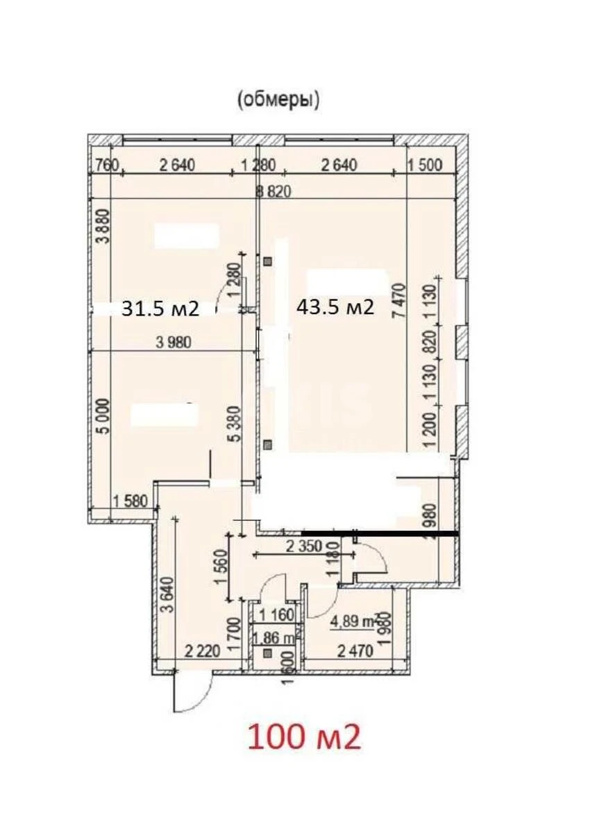
              Общая площадь
                98 м2
              Общее состояние
                С ремонтом
              Цена:
              41 100 грн.
              978 USD
            Описание объекта
          Офисное помещение. Метро 'Контрактовая площадь' - 5 минут. Шестой этаж, 98 м2 (два кабинета, кухня, санузел - 41100 гр/мес с НДС), все коммуникации, кондиционеры, магнитный ключ, охрана, круглосуточный доступ. Дополнительно коммунальные платежи. Сдается с 1 августа.
Дополнительная информация
           
                   
                   
                   
                   
                   
                   
                   
                   
                   
                   
                   
                   
                   
                           
                           
                          