Rent

All photos (14)
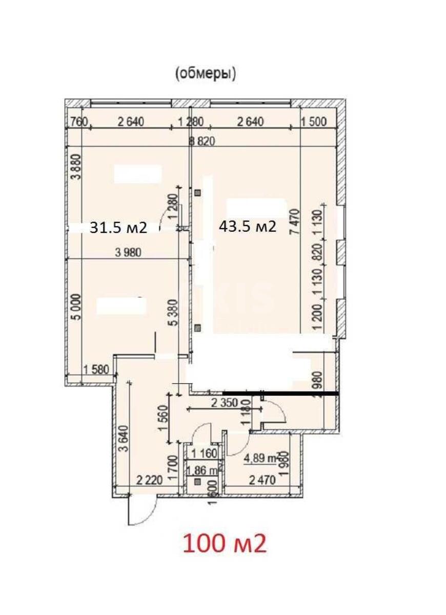
Office vul. Nyzhnij Val 15, 98m2
- Add to favorites
-
Share link
Market type
Secondary market
Street
vul. Nyzhnij Val 15
Purpose
Office Premise
Floor
6 Floor
Number of storeys
6 storey house
Total area
98 м2
General state
With repair
Price:
41 100 UAH
995 USD
Description of the object
Office space. Metro 'Kontraktova Ploshcha' - 5 minutes. Sixth floor, 98 m2 (two offices, kitchen, bathroom - 41100 UAH/month including VAT), all communications, air conditioning, magnetic key, security, round-the-clock access. Additional utility bills. For rent from August 1.
Additional Information