Аренда
 
              
                 
                Все фото (11)
              
              
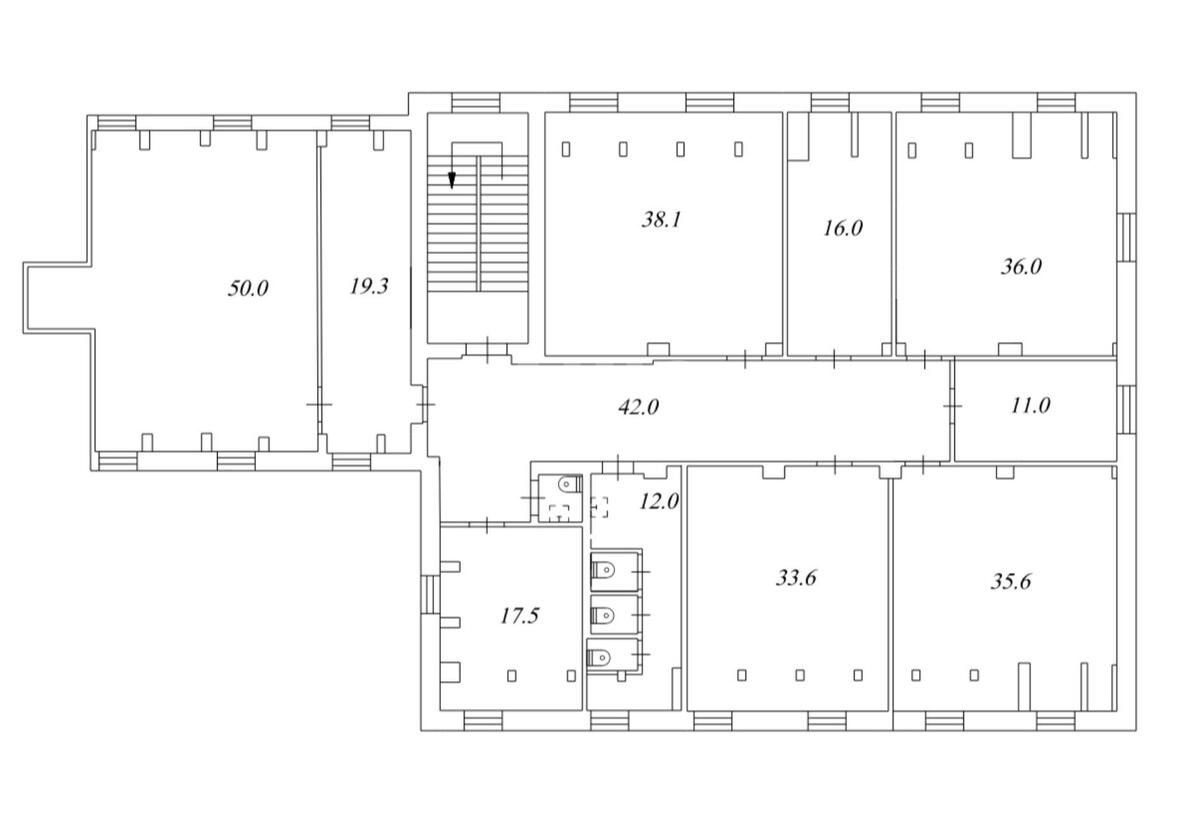
          Офис ул. Межигорская 87А, 316м2
- Добавить в избранное
- 
              Поделиться ссылкой
Тип рынка
                Вторичный рынок
              Улица
                
                  ул. Межигорская 87А
              Призначення
                Офисное помещение
              Этаж
                4 Этаж
              Этажность
                5 этажный дом
                
              Общая площадь
                316 м2
              Общее состояние
                С ремонтом
              Цена:
              89 744 грн.
              2 136 USD
            Описание объекта
          Офисное помещение. Бизнес-центр "Межигорский". Подол, метро Тараса Шевченко, три минуты пешком. Доступ 24/7. Парковка. Вода и электроэнергия по счетчикам. На территории круглосуточный пост физической охраны оборудован тревожной кнопкой вызова полиции и видеонаблюдение 24/7.
Дополнительная информация
           
                   
                   
                   
                   
                   
                   
                   
                   
                   
                   
                           
                           
                          