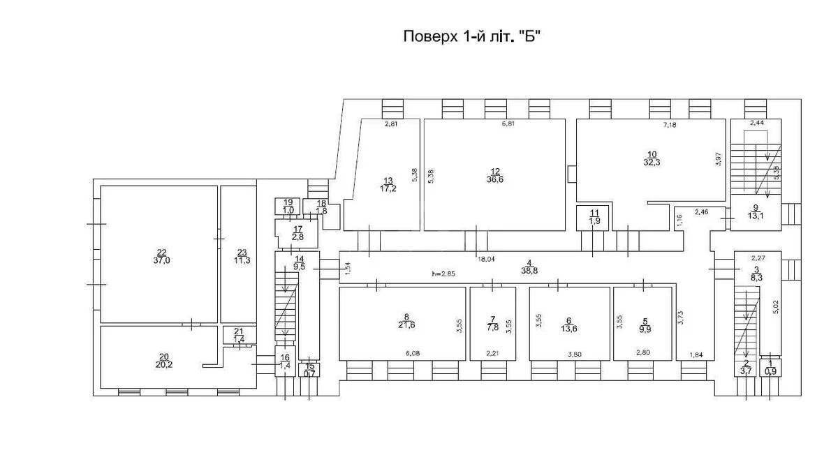
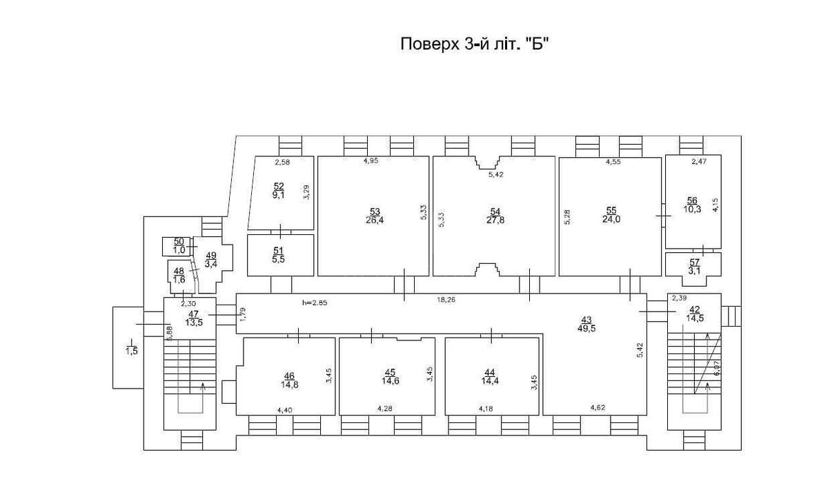
Офис ул. Константиновская 32Б, 972м2

  • Подольский район ул. Константиновская 32Б
  • Код: SC-218-974
  • Добавлено: 30.05.2026
  • Добавить в избранное
Тип рынка
Вторичный рынок
Улица
ул. Константиновская 32Б
Призначення
Офисное помещение
Этаж
1 Этаж
Этажность
4 этажный дом
Общая площадь
972 м2
Общее состояние
С ремонтом
Цена:
88 536 978 грн.
2 000 000 USD
Описание объекта

Офисное помещение. Количество этажей - 4 (включая цокольный этаж) В бизнес-центре выполнен качественный ремонт, большинство помещений меблированы. Установлены дизель генератор, приточно-вытяжная вентиляция, системы кондиционирования. Возможна продажа как корпоративных прав, так и объекта недвижимости.

Похожие предложения