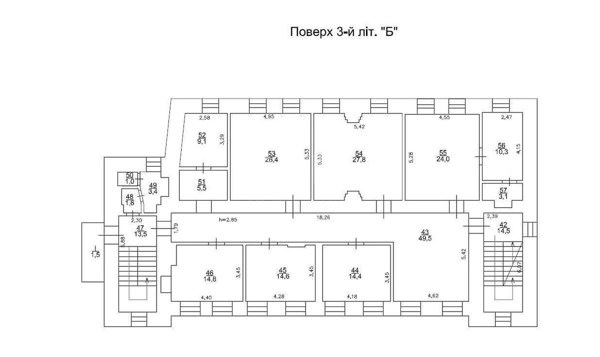
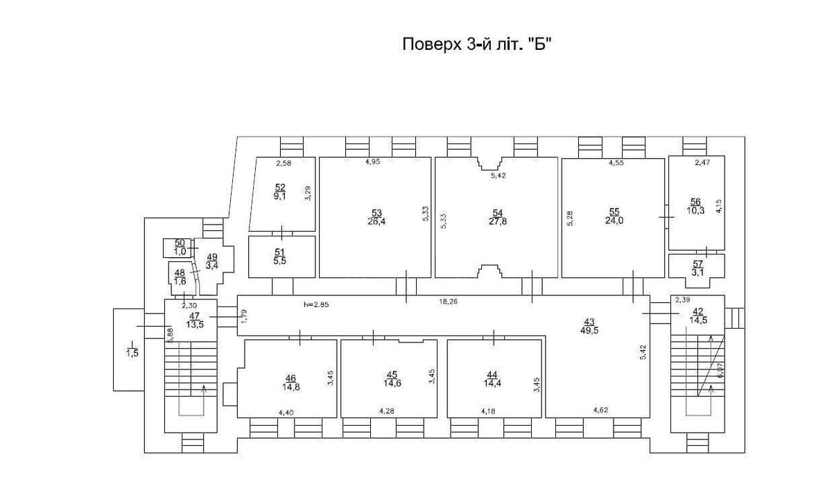
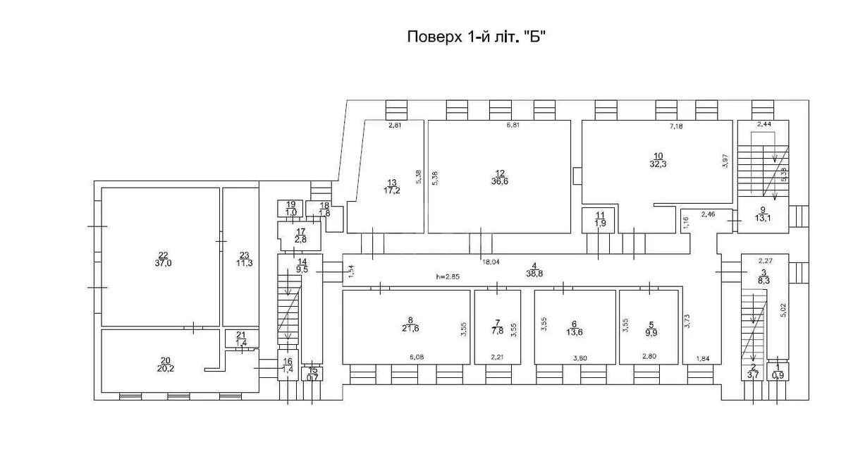
Office vul. Kostjantynivs'ka 32Б, 972m2

  • Podilskyi District vul. Kostjantynivs'ka 32Б
  • Code: SC-218-974
  • Added by: 30.05.2026
  • Add to favorites
Market type
Secondary market
Street
vul. Kostjantynivs'ka 32Б
Purpose
Office Premise
Floor
1 Floor
Number of storeys
4 storey house
Total area
972 м2
General state
With repair
Price:
88 536 978 UAH
2 000 000 USD
Description of the object

Office space. Number of floors - 4 (including the ground floor) The business center has been renovated, most of the premises are furnished. A diesel generator, supply and exhaust ventilation, air conditioning systems are installed. It is possible to sell both corporate rights and real estate.

Similar offers