Офис ул. Физкультуры 28, 132м2

  • Голосеевский район ул. Физкультуры 28
  • Код: RC-219-759
  • Добавлено: 30.12.2025
  • Добавить в избранное
Тип рынка
Вторичный рынок
Улица
ул. Физкультуры 28
Призначення
Офисное помещение
Этаж
5 Этаж
Этажность
10 этажный дом
Общая площадь
132 м2
Общее состояние
С ремонтом
Цена:
140 449 грн.
3 326 USD
Описание объекта

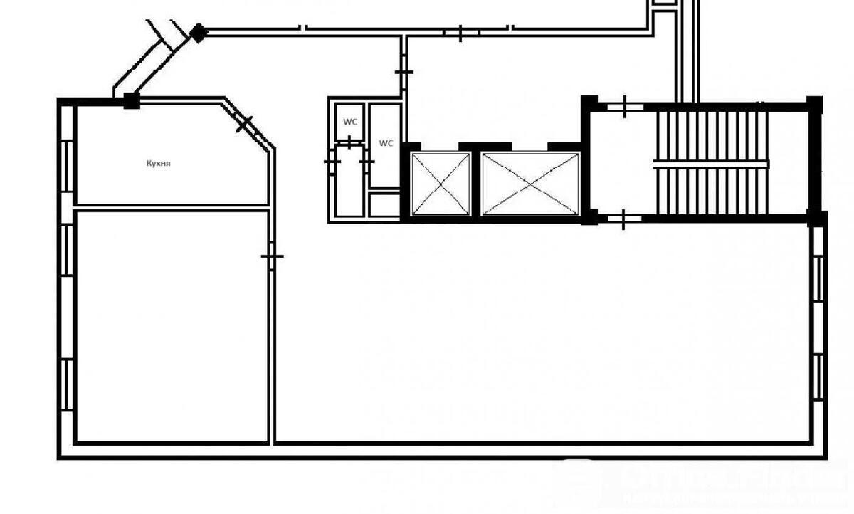
Офисное помещение. Помещение расположено на 5 этаже. Отдельный блок. Бизнес Центр класса B, расположен в десяти минутах от станции метро 'Олимпийская'. Планировка: 1 зал open space плюс 1 отдельный кабинет, кухня, 2 с/у. пожарная и охранная сигнализация, охрана, видео наблюдение, центральная система кондиционирования. В БЦ есть подземный паркинг, генератор и укрытие.

Похожие предложения