Office vul. Fizkul'tury 28, 132m2

  • Holosiivskyi District vul. Fizkul'tury 28
  • Code: RC-219-759
  • Added by: 30.12.2025
  • Add to favorites
Market type
Secondary market
Street
vul. Fizkul'tury 28
Purpose
Office Premise
Floor
5 Floor
Number of storeys
10 storey house
Total area
132 м2
General state
With repair
Price:
140 449 UAH
3 326 USD
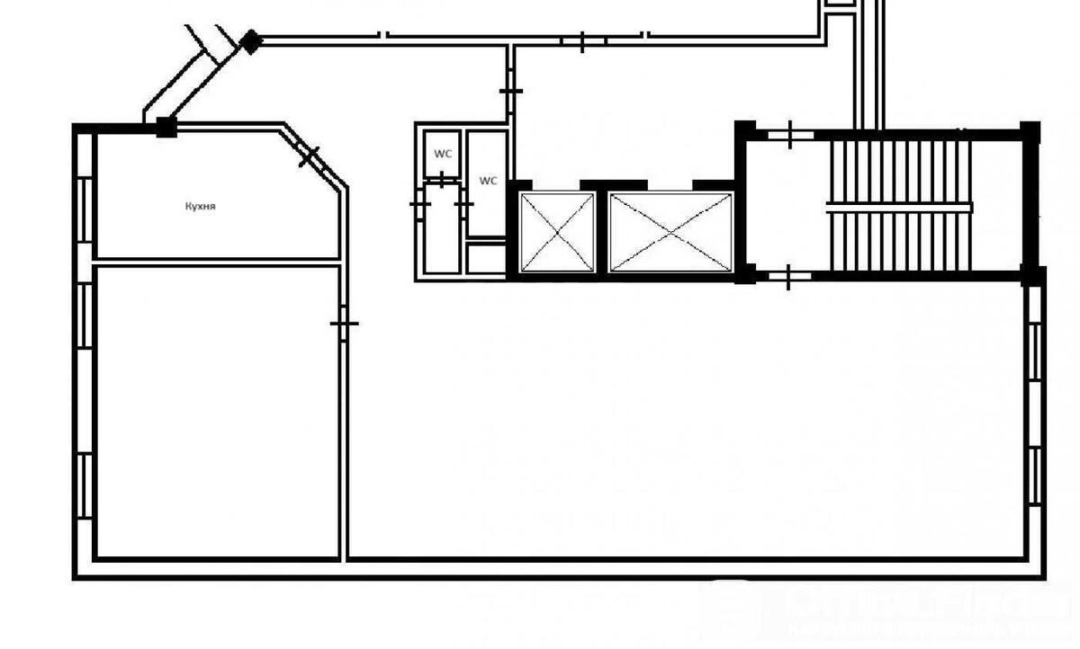
Description of the object

Office space. The room is located on the 5th floor. A separate block. Business Center of class B, located ten minutes from the metro station 'Olympic '. Layout: 1 open space hall plus 1 separate office, kitchen, 2 bathrooms. fire and burglar alarm, security, video surveillance, central air conditioning system. The business center has an underground parking lot, a generator and a shelter.

Similar offers